Перетворення 3-кімнатної квартири в ЖК «Nagatino i-Land»: простір, наповнений гармонією

10 хв

Згадайте відчуття, коли ви вперше зайшли у свій дім. Уявіть, що він ідеально відображає вашу особистість. Це можливо завдяки правильному ремонту та дизайну. Ми покажемо вам, як це зробити.

Чарівність простоти. Ремонт 3-кімнатної квартири в ЖК «Nagatino i-Land»

Сучасний ремонт 3-кімнатної квартири в ЖК «Nagatino i-Land» з елементами дизайну інтер'єру.
Продумане планування та сучасні матеріали створили гармонійний простір для життя.
Інтер'єр 3-кімнатної квартири після ремонту в сучасному стилі, ЖК «Nagatino i-Land».
Світлі кольори та мінімалізм підкреслюють відчуття простору та легкості в квартирі.
Завершений ремонт 3-кімнатної квартири в ЖК «Nagatino i-Land»: стильний дизайн інтер'єру.
Використання натуральних матеріалів додає затишку та тепла в дизайн квартири.
Простір, наповнений гармонією: дизайн 3-кімнатної квартири в ЖК «Nagatino i-Land».
Увага до деталей та аксесуарів робить інтер’єр більш індивідуальним та живим.
Ремонт 3-кімнатної квартири в ЖК «Nagatino i-Land»: світла вітальня з диваном.
Зручний диван з м’якими подушками створює затишне місце для відпочинку всієї родини.
Дизайн інтер'єру 3-кімнатної квартири в ЖК «Nagatino i-Land»: сучасна кухня.
Функціональна кухня з вбудованою технікою – ідеальне місце для кулінарних експериментів.

Чарівність простоти. Ремонт 3-кімнатної квартири в ЖК «Nagatino i-Land».
Детальніше про проєкт.

Ремонт 3-кімнатної квартири: стильний інтер'єр спальні в ЖК «Nagatino i-Land».
Спокійні кольори та м’яке освітлення сприяють розслабленню та відпочинку в спальні.

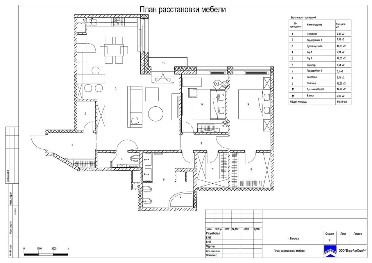
Планування 3-кімнатної квартири 85 м².

Основна ідея дизайну цієї квартири – натуральність. Тут використано дерево та камінь. Кольори – сіро-бежеві, екологічні та спокійні. У квартирі живе доросла жінка з літньою мамою.

Інтер'єр дитячої кімнати в 3-кімнатній квартирі після ремонту в ЖК «Nagatino i-Land».
Яскрава та функціональна дитяча кімната – простір для ігор та навчання дитини.

Столик і панно у передпокої.

Тут є простора кухня-вітальня. Вона підходить для сімейних обідів і зустрічей з друзями. Дві затишні спальні забезпечують комфорт кожній господині.

Ванна кімната після ремонту 3-кімнатної квартири в ЖК «Nagatino i-Land».
Сучасна ванна кімната з використанням якісної сантехніки та плитки.

Кухня-вітальня після ремонту.

Маленька спальня (12 м²) призначена для літньої мами. Це затишний куточок. Тут є все необхідне: ліжко та шафа для зберігання речей.

Коридор в 3-кімнатній квартирі після сучасного ремонту, ЖК «Nagatino i-Land».
Функціональний коридор з достатньою кількістю місця для зберігання речей.

Ліжко в спальні матері.

У кутовій квартирі спальня доньки має два вікна. З них відкривається чудовий вид на місто. Якщо потрібно, можна закрити вікна щільними шторами. Так можна зменшити освітлення.

Сучасний ремонт 3-кімнатної квартири в ЖК «Nagatino i-Land», елегантний дизайн
Світла та простора вітальня після ремонту, що підкреслює гармонію простору.

Спальня дівчини після ремонту. Фото 2025.

Дизайн інтер'єру 3-кімнатної квартири в ЖК «Nagatino i-Land», стильний ремонт
Затишна спальня з м’якими акцентами, створена для комфортного відпочинку.

Спальня в кутовій квартирі.

Дизайн спальні виконаний у сіро-бежевих тонах. Він нагадує скелясті пейзажі. Це сприяє розслабленню. Є велика шафа і туалетний столик. Це робить простір зручним.

Верх елегантності. Ремонт 3-кімнатної квартири в ЖК «Корольова 13»

Фото ремонту 3-кімнатної квартири в ЖК «Nagatino i-Land», сучасний стиль
Функціональна кухня з сучасним обладнанням для зручного приготування їжі.
Інтер'єр трикімнатної квартири після ремонту в ЖК «Nagatino i-Land»
Дитяча кімната, оформлена з урахуванням потреб дитини, простора та світла.
Ремонт 3-кімнатної квартири в ЖК «Nagatino i-Land»: вдале поєднання кольорів
Ванна кімната з використанням сучасних матеріалів, практична та стильна.
Сучасний дизайн 3-кімнатної квартири після ремонту в ЖК «Nagatino i-Land»
Зона відпочинку з каміном, що додає тепла та затишку в атмосферу квартири.
3-кімнатна квартира в ЖК «Nagatino i-Land»: приклад сучасного ремонту
Стильний коридор з використанням дзеркал, який візуально збільшує простір.
Інтер'єр 3-кімнатної квартири в ЖК «Nagatino i-Land» після сучасного ремонту
Робочий кабінет, обладнаний для продуктивної роботи та комфорту.

Верх елегантності. Ремонт 3-кімнатної квартири в ЖК «Корольова 13». Детальніше про проєкт.

Дизайн трикімнатної квартири в ЖК «Nagatino i-Land»: простір та гармонія
Обідня зона з великим столом, ідеальна для сімейних обідів та зустрічей з друзями.

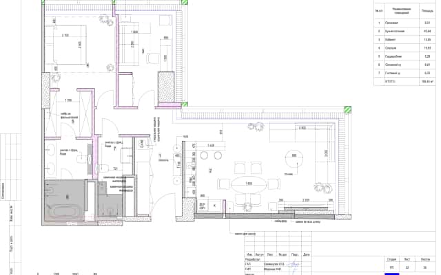
Планування 3-кімнатної квартири 97 м².

Ремонт трикімнатної квартири в ЖК «Nagatino i-Land» з використанням сучасних матеріалів
Балкон, перетворений на затишний куточок для відпочинку з видом на місто.

Планування 3-кімнатної квартири 97 м².

Ця квартира призначена для подружжя з сином. Вона знаходиться в ЖК «Корольова 13». Тут високі стелі (більше 3 метрів) і багато вікон. Дизайнери створили другий рівень. Це збільшило корисну площу.

На першому поверсі розташовані вітальня, кухня, дитяча та санвузол. На другому поверсі – гардеробна і спальня з ванною. інтер'єр світлий, у стилі неокласика з елементами арт-деко. Використані дорогі матеріали або їх імітації. Також є дизайнерські світильники та меблі. Сходи та меблі зроблені на замовлення.

Сучасний ремонт 3-кімнатної квартири в ЖК Nagatino i-Land: інтер'єр вітальні
Стильна вітальня з акцентом на природні матеріали та мінімалізм в ЖК Nagatino i-Land.

Вітальня дворівневої 3-кімнатної квартири.

Дизайн інтер'єру 3-кімнатної квартири в ЖК Nagatino i-Land: кухня з барною стійкою
Функціональна кухня з барною стійкою – ідеальне рішення для сучасного життя в ЖК Nagatino i-Land.

Вітальня дворівневої 3-кімнатної квартири.

Вітальня виглядає розкішно. Вона не поступається заміському будинку. Тут багато світла, чудова люстра і мармурова панель. Гості будуть вражені.

Ремонт 3-кімнатної квартири в ЖК Nagatino i-Land: затишна спальня з м'яким освітленням
М’яке освітлення та спокійні кольори створюють атмосферу релаксу у спальні в ЖК Nagatino i-Land.

Столова зона кухні-вітальні.

Інтер'єр дитячої кімнати в 3-кімнатній квартирі в ЖК Nagatino i-Land: світлі тони
Світла та простора дитяча кімната, що сприяє розвитку та іграм, в ЖК Nagatino i-Land.

Непомітна світла кухня.

Кухня дуже лаконічна. Вона виконана в колір стін. Тому вона ніби розчиняється у вітальні. Підлога на кухні зроблена з керамограніту під мармур. З нього ж зроблена стільниця.

Сучасний дизайн ванної кімнати в 3-кімнатній квартирі в ЖК Nagatino i-Land: мінімалізм
Мінімалістичний дизайн ванної кімнати з акцентом на функціональність та комфорт в ЖК Nagatino i-Land.

Спальня в світлих тонах. Фото 2025.

Перетворення 3-кімнатної квартири в ЖК Nagatino i-Land: загальний вигляд коридору
Світлий та просторий коридор, що гармонійно поєднує всі кімнати в ЖК Nagatino i-Land.

Ванна-чаша в майстер-санвузлі.

Спальня батьків знаходиться на другому поверсі. Вона виконана в спокійних кольорах. Поруч зі спальнею є ванна кімната. Це робить квартиру ще більш комфортною.

Ремонт 3-кімнатної квартири 107 м² в стилі арт-деко

Ремонт 3-кімнатної квартири в ЖК Nagatino i-Land: деталі інтер'єру вітальні
Продумані деталі інтер’єру, що додають стилю та затишку вітальні в ЖК Nagatino i-Land.
Дизайн 3-кімнатної квартири в ЖК Nagatino i-Land: освітлення в спальні
Правильно підібране освітлення створює затишну атмосферу для відпочинку в спальні в ЖК Nagatino i-Land.
Сучасний ремонт 3-кімнатної квартири в ЖК Nagatino i-Land: обідня зона на кухні
Комфортна обідня зона на кухні для сімейних обідів та зустрічей з друзями в ЖК Nagatino i-Land.
Інтер'єр 3-кімнатної квартири в ЖК Nagatino i-Land: робочий простір в кабінеті
Функціональний робочий простір в кабінеті для продуктивної роботи вдома в ЖК Nagatino i-Land.
Сучасний ремонт 3-кімнатної квартири в ЖК «Nagatino i-Land», деталі інтер'єру
Продумане освітлення створює атмосферу тепла та комфорту в інтер’єрі квартири.
Дизайн інтер'єру 3-кімнатної квартири в ЖК «Nagatino i-Land», сучасний стиль
Світлі тони та мінімалізм в дизайні підкреслюють просторість та елегантність приміщення.

Ремонт 3-кімнатної квартири 107 м² в стилі арт-деко. Детальніше про проєкт.

Ремонт 3-кімнатної квартири в ЖК «Nagatino i-Land», планування простору
Ергономічне планування дозволяє максимально ефективно використовувати кожен квадратний метр площі.

Планування трикімнатної квартири 107 м².

Власники квартири – молода пара. Вони хотіли створити інтер’єр для вечірок. Але він також повинен бути зручним для роботи. Дизайнери оформили квартиру в стилі арт-деко. Тут використані бежево-коричневі кольори із золотими акцентами.

Сучасний ремонт 3-кімнатної квартири в ЖК «Nagatino i-Land», вид на кухню
Кухня з сучасними меблями та технікою органічно вписується в загальний стиль квартири.

Вітальня з каміном в ТВ-зоні.

У спальні є гардеробна. Там облаштували міні-кінотеатр. Зону ліжка виділили дерев’яними панелями з підсвіткою. Це додає затишку.

Інтер'єр 3-кімнатної квартири в ЖК «Nagatino i-Land», комфортна вітальня
Зручний диван та м’які подушки створюють затишну атмосферу у вітальні, ідеальну для відпочинку.

Коричнева спальня з дерев’яними панелями.

Ванна кімната нагадує епоху Гетсбі. Тут використаний темний і світлий мармур. Дзеркала створюють гру відображень. Глянцеві поверхні та підсвічені ніші ускладнюють простір. Дизайнерські світильники та сантехніка завершують композицію.

Ремонт квартири в ЖК «Nagatino i-Land», деталі освітлення
Точкове освітлення та стильні світильники додають акценти та підкреслюють деталі інтер’єру.

Ванна в стилі арт-деко.

Дизайн 3-кімнатної квартири в ЖК «Nagatino i-Land», елегантний декор
Елегантні предмети декору гармонійно доповнюють інтер’єр, створюючи атмосферу затишку та вишуканості.

Гарний санвузол в стилі арт-деко.

Мармур і золото поєднуються з деревом. Кольори у ванній кімнаті спокійні. Це робить її розкішною, але стриманою.

Ремонт 3-кімнатної квартири 124 м² в сучасному стилі

Сучасний ремонт 3-кімнатної квартири в ЖК «Nagatino i-Land», акцент на деталях
Використання натуральних матеріалів та текстур додає інтер’єру глибини та індивідуальності.
Ремонт трикімнатної квартири, інтер'єр з великою кількістю світла
Велика кількість природного світла робить простір більш відкритим та живим, наповнюючи його енергією.
Дизайн трикімнатної квартири в сучасному стилі
Поєднання мінімалізму та функціональності робить цей дизайн практичним та естетично привабливим.
Сучасний ремонт 3-кімнатної квартири в ЖК «Nagatino i-Land»: інтер'єр вітальні
Елегантний дизайн вітальні з використанням сучасних матеріалів та освітлення.
Дизайн інтер'єру 3-кімнатної квартири в ЖК «Nagatino i-Land»: кухня з обідньою зоною
Функціональна кухня з обідньою зоною, що поєднує комфорт і сучасний стиль.
Ремонт 3-кімнатної квартири: спальня в сучасному стилі в ЖК «Nagatino i-Land»
Стильна та затишна спальня, що створює атмосферу спокою та релаксації.

Ремонт 3-кімнатної квартири 124 м² в сучасному стилі. Детальніше про проєкт.

Інтер'єр дитячої кімнати після ремонту 3-кімнатної квартири ЖК «Nagatino i-Land»
Яскрава та функціональна дитяча кімната, де є місце для ігор та навчання.

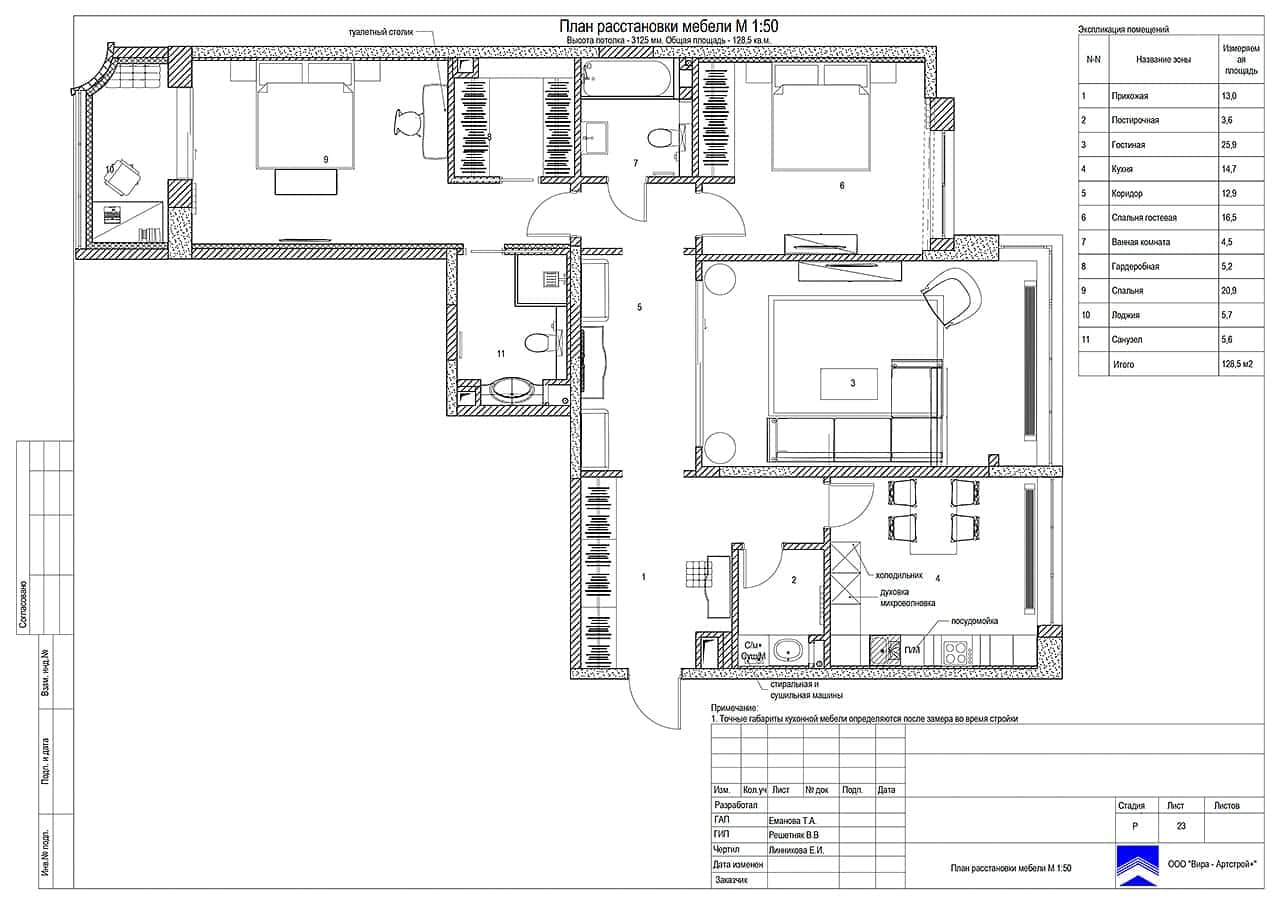
Планування 3-кімнатної квартири 124 м².

Мінімалізм теж може бути розкішним. Дизайнери створили проєкт квартири з панорамними вікнами. Майстри якісно виконали ремонт.

Ванна кімната з сучасним ремонтом у 3-кімнатній квартирі ЖК «Nagatino i-Land»
Елегантна ванна кімната з використанням сучасних матеріалів та сантехніки.

Ремонт 3-кімнатної квартири в ЖК «Дубровська Слобода».

Про професіоналізм проєктувальників можна судити по фото. Важливий результат – зручний простір. Він виконаний в єдиному стилі. Він комфортний для всіх членів сім’ї.

При виборі стилю для ремонту, враховуйте спосіб життя. Також подумайте про потреби кожного члена сім’ї. Важливо, щоб усім було комфортно. Це зробить вашу квартиру затишною.

Ремонт 3-кімнатної квартири 134 м² в стилі неокласика

Коридор після ремонту 3-кімнатної квартири в ЖК «Nagatino i-Land»: сучасний дизайн
Оптимізований простір коридору з використанням сучасних рішень освітлення.
Деталі дизайну: сучасний ремонт 3-кімнатної квартири в ЖК «Nagatino i-Land»
Акцент на деталях, що підкреслюють сучасний стиль інтер’єру квартири.
Перетворення 3-кімнатної квартири в ЖК «Nagatino i-Land»: загальний вигляд вітальні
Панорамний вид вітальні, що демонструє гармонію кольорів та простору.
Ремонт 3-кімнатної квартири: вид на кухню з вітальні в ЖК «Nagatino i-Land»
Відкритий простір кухні, що плавно переходить у вітальню, створюючи єдиний простір.
Дизайн інтер'єру 3-кімнатної квартири в ЖК «Nagatino i-Land»: робочий куточок в спальні
Зручний робочий куточок в спальні, що забезпечує комфорт для роботи та навчання.
Сучасний ремонт 3-кімнатної квартири в ЖК «Nagatino i-Land», стильний дизайн інтер'єру
Елегантний дизайн інтер’єру трикімнатної квартири, що поєднує комфорт та функціональність в кожному куточку.

Ремонт 3-кімнатної квартири 134 м² в стилі неокласика. Детальніше про проєкт.

Фото ремонту 3-кімнатної квартири в ЖК, сучасний стиль, світлі тони
Використання світлих тонів візуально розширює простір, роблячи трикімнатну квартиру більш просторою та затишною.

Планування 3-кімнатної квартири 134 м².

Неокласика – популярний стиль дизайну. Він підходить для квартир і будинків. Він поєднує елегантність класики з сучасними рішеннями.

Сучасний дизайн інтер'єру 3-кімнатної квартири в ЖК «Nagatino i-Land»
Продуманий дизайн інтер’єру, де кожна деталь створює гармонійний та стильний простір для життя.

Дизайн 3-кімнатної квартири в ЖК «Форт Кутузов».

Тут використані світлі кольори. Дизайнерські шпалери і світильники створюють затишок. Екологічні матеріали та вишукані лінії роблять інтер’єр неповторним.

Знаєте, що правильне освітлення може змінити сприйняття простору? Використовуйте різні джерела світла. Це допоможе створити потрібну атмосферу. Наприклад, тепле світло робить кімнату затишнішою.

Як обрати стиль для ремонту 3-кімнатної квартири

Вибір стилю для ремонту – важливе рішення. Він впливає на ваш комфорт. Він впливає на ваші емоції. Ось кілька порад, які допоможуть вам.

Визначте свої потреби

Подумайте, як ви використовуєте простір. Скільки людей живе у квартирі? Які ваші хобі та інтереси? Це допоможе вам обрати правильний стиль.

Розгляньте різні стилі дизайну

Існує багато стилів дизайну. Мінімалізм, неокласика, арт-деко. Кожен має свої особливості. Вивчіть їх. Виберіть той, який вам подобається.

Сучасний ремонт: тренди та тенденції

Сучасний ремонт передбачає використання нових технологій. Це розумний дім, енергозбереження. Також важлива функціональність.

  • Використання екологічних матеріалів.
  • Відкрите планування простору.
  • Мінімалістичний дизайн.
  • Інтеграція розумних технологій.

Не заощаджуйте на якості матеріалів. Дешеві матеріали можуть швидко вийти з ладу. Це призведе до додаткових витрат. Краще інвестувати в якість.

Житлові комплекси: особливості ремонту

У житлових комплексах є свої особливості ремонту. Важливо враховувати правила забудовника. Також слід узгоджувати проєкт з керуючою компанією.

Створення затишного простору

Затишок – важливий елемент дому. Додайте текстиль, рослини, декор. Вони зроблять вашу квартиру унікальною.

Скільки коштує ремонт 3-кімнатної квартири в Україні?

Вартість ремонту залежить від багатьох факторів. Це площа квартири, стиль дизайну. Також впливає вибір матеріалів. Ось приблизні ціни на ремонт.

Фактори, що впливають на ціну

  • Площа квартири.
  • Складність дизайну.
  • Якість матеріалів.
  • Вартість роботи майстрів.

Приблизні ціни на ремонт (2024 рік)

Ціни можуть змінюватися. Залежать від регіону та компанії.

Вид робіт Ціна за м² (грн) Примітки
Косметичний ремонт Від 3000 Оновлення оздоблення
Капітальний ремонт Від 7000 Заміна комунікацій, перепланування
Дизайнерський ремонт Від 12000 Індивідуальний проєкт, дорогі матеріали

Експерти радять планувати бюджет на ремонт. Додайте до нього 10-15% на непередбачені витрати. Це допоможе уникнути фінансових проблем.

Як заощадити на ремонті

  • Порівнюйте ціни різних компаній.
  • Вибирайте матеріали середньої цінової категорії.
  • Виконуйте деякі роботи самостійно.
  • Плануйте ремонт заздалегідь.

Не намагайтеся зробити все самостійно. Деякі роботи краще довірити професіоналам. Це допоможе уникнути помилок і додаткових витрат.

Ремонт 3-кімнатної квартири – це великий проєкт. Він потребує планування та зусиль. Але результат вартий того. Ви отримаєте комфортний і затишний дім.

Висновок

Ремонт 3-кімнатної квартири – це інвестиція у ваше майбутнє. Правильний дизайн і якісні матеріали зроблять ваш дім комфортним і красивим. Не бійтеся експериментувати. Створюйте простір, який відображає вашу особистість.

Пам’ятайте про безпеку під час ремонту. Використовуйте захисні засоби. Дотримуйтесь правил техніки безпеки. Це допоможе уникнути травм і нещасних випадків.

Часті запитання

Вибір стилю залежить від ваших особистих вподобань та потреб. Розгляньте мінімалізм, неокласику або арт-деко.
Вартість ремонту залежить від багатьох факторів, включаючи площу квартири, стиль дизайну та вибір матеріалів. Приблизні ціни починаються від 3000 грн за м² для косметичного ремонту.
Порівнюйте ціни різних компаній, вибирайте матеріали середньої цінової категорії та виконуйте деякі роботи самостійно.
Оцініть
Перетворення 3-кімнатної квартири в ЖК «Nagatino i-Land»: простір, наповнений гармонією - 6 - SeWerIn

Про автора: Олег Новосад

Олег Новосад – експерт з інженерії з понад 12-річним досвідом у будівельних проєктах. Спеціалізується на переплануванні та модернізації приміщень, а також інженерних комунікаціях (електрика, сантехніка, вентиляція). Успішно реалізував понад 30 проєктів з ремонту квартир та офісів. Має сертифікати з електробезпеки та сантехнічних робіт.

5 думок про “Перетворення 3-кімнатної квартири в ЖК «Nagatino i-Land»: простір, наповнений гармонією

  1. Олександр каже:

    Круто! Мені подобається, як мінімалізм робить квартиру просторішою. Може, і собі так спробувати? Забрав пару ідей для майбутнього ремонту.

    • Анна каже:

      Олександре, я згодна! Мінімум речей – максимум простору. Мені теж здається, що це чудовий варіант, особливо для невеликих квартир. Я собі теж дещо занотувала на майбутнє!

  2. Марія каже:

    Завжди мріяла про таку світлу квартиру! Треба буде уважніше придивитися до подібних рішень, коли робитиму ремонт. Може, і в мене вийде створити щось таке ж гармонійне.

  3. Марія каже:

    “Гармонія”, “спокій”… Ага, особливо коли діти розносять все навкруги. Цікаво, скільки прибирань знадобиться, щоб ця “гармонія” протрималася хоча б тиждень? І чи є там кімната для зберігання всього мотлоху, який “не вписується” в дизайн?”

  4. Дмитро каже:

    Завжди дивувався, як дизайнери так відчувають простір. Треба буде спробувати щось подібне в себе зробити.

Залишити коментар до Дмитро Скасувати коментар

Ваша e-mail адреса не оприлюднюватиметься. Обов’язкові поля позначені *