Функціональний мінімалізм: рішення для затишної 3-кімнатної квартири

Зміст

8 хв

Функціональний мінімалізм у 3-кімнатній квартирі: розширений простір та затишок

Міф: більша квартира завжди означає більше простору. Це не так! Правильний дизайн 3-кімнатної квартири може створити більше вільного місця, ніж ви думаєте. Головне – функціональність та мінімалізм.

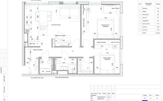
Ми розглянемо декілька вдалих прикладів. Ви побачите, як створити затишок і розширити простір. Навіть у квартирі площею 85 квадратних метрів.

Дизайн інтер’єру квартири – це не просто красиві картинки. Це продумане рішення для вашого комфорту. Це організація простору, яка відповідає вашим потребам.

1. Прозорі рішення для ванної кімнати

Абсолютна прозорість

Сучасний дизайн інтер'єру трикімнатної квартири з еко-мотивами та функціональним мінімалізмом

Натуральні матеріали та світлі тони створюють відчуття простору та затишку в цій трикімнатній квартирі.Душова перегородка з прозорого скла – чудовий спосіб заощадити простір. Особливо у невеликих ванних кімнатах. Розсувні двері з прозорого загартованого скла – це естетично і функціонально.

Прозоре скло візуально збільшує простір. Воно робить ванну кімнату світлішою та просторішою. Розгляньте цей варіант, якщо у вас невелика ванна кімната.

2. Дизайн 3-кімнатної квартири 85 м²: чарівність простоти

Затишна вітальня з диваном, килимом та дерев'яними елементами в трикімнатній квартирі

М’який килим та дерев’яні меблі додають тепла та комфорту до мінімалістичного інтер’єру вітальні.Ця квартира розташована в ЖК Nagatino i-Land. Вона виконана в сучасному стилі. Тут багато світла і повітря. Відчувається близькість до природи і любов до комфорту.

Мотиви дерева та каменю в інтер’єрі квартири

Мінімалістична кухня з дерев'яною стільницею та білими фасадами в трикімнатній квартирі

Ергономічний дизайн кухні забезпечує зручність та практичність в приготуванні їжі.

Елегантна ванна кімната з використанням дерева та каменю в дизайні трикімнатної квартири

Поєднання натуральних матеріалів надає ванній кімнаті відчуття спокою та гармонії з природою.

Спальня з великим вікном та дерев'яними акцентами в дизайні сучасної трикімнатної квартири

Природне освітлення робить спальню світлою та просторою, сприяючи розслабленню.

Сучасний інтер'єр вітальні з каміном та зручними меблями в трикімнатній квартирі

Камін додає затишку та тепла у вітальню, створюючи атмосферу для сімейних вечорів.

Деталі інтер'єру: дерев'яний декор та рослини в еко-дизайні трикімнатної квартири

Рослини та дерев’яні елементи підкреслюють екологічність дизайну інтер’єру квартири.

Стильний дизайн ванної кімнати з душовою кабіною та сучасними аксесуарами

Функціональна душова кабіна та сучасні аксесуари роблять ванну кімнату комфортною та практичною.Замовники – доросла жінка та її мама. Вони хотіли, щоб у квартирі було затишно та функціонально. Дизайнери об’єднали кухню з вітальнею. Вони змінили простір, щоб зробити його зручнішим.

Еко мотиви в інтер’єрі стали ключовими. Натуральні матеріали та кольори створюють атмосферу спокою та гармонії. Дерево і камінь додають тепла і затишку.

Унікальний арт-об’єкт

Загальний вигляд трикімнатної квартири в стилі функціонального мінімалізму з еко-мотивами

Інтер’єр поєднує в собі мінімалізм та екологічні рішення для створення комфортного простору.В прихожій встановлено дизайнерську консоль ручної роботи. Вона розміщена на тлі стіни з 3D-панелями. Доповнює композицію кругле декоративне панно з підсвіткою.

Цей арт-об’єкт задає тон всьому інтер’єру. Він вводить тему природного каменю. Ця тема продовжується в інших кімнатах квартири.

Природні матеріали в інтер’єрі позитивно впливають на психологічний стан людини. Вони допомагають розслабитися і відчути зв’язок з природою.

Актуальні еко мотиви в інтер’єрі

Освітлення в інтер'єрі трикімнатної квартири: люстри та світильники в сучасному стилі

Продумане освітлення створює затишну атмосферу та підкреслює деталі інтер’єру трикімнатної квартири.В спальні переважають ніжні персикові відтінки. Створити інтер’єр, в якому відчувається близькість до природи, можна різними способами. Використання дерева – один з них.

Дизайнери часто використовують дерево в обробці та меблях. Це додає тепла і затишку. Дерево може бути використане в різних текстурах і відтінках.

Додатковий об’єм

Сучасний дизайн інтер'єру трикімнатної квартири з елементами функціонального мінімалізму та еко-мотивів

Світла вітальня з акцентом на натуральні матеріали та функціональні меблі.Фактурна штукатурка – популярний спосіб обробки стін. Її використовують для виділення акцентних стін. Вона додає їм об’єму.

В спальні така штукатурка гарно виглядає за узголів’ям ліжка. Вона імітує природний камінь. Це створює відчуття природності та спокою.

Зона подвійного призначення

Затишна трикімнатна квартира: поєднання сучасного дизайну та еко-мотивів у кожній деталі

Продумане освітлення створює теплу атмосферу у всій квартирі.Невелика ніша біля вікна перетворилася в будуарну зону. Тут є дзеркало і світильник. Цю зону можна використовувати і як робоче місце.

Поруч розташована оттоманка у формі каменю-валуна. Тут можна відпочити в перервах між роботою. Це зручне і функціональне рішення.

Експерти радять використовувати багатофункціональні меблі. Вони допомагають економити простір і роблять квартиру зручнішою.

М’яке світіння

Функціональний мінімалізм в інтер'єрі трикімнатної квартири: стильний та практичний дизайн

Кухня-вітальня з барною стійкою – ідеальне рішення для сучасного життя.Прихована світлодіодна стрічка змінює сприйняття простору. Вона впливає на об’єм, геометрію та висоту стелі. LED-підсвітка в дзеркалі замінює додаткові світильники у ванній кімнаті.

3. Сучасність і респектабельність: дизайн 3-кімнатної квартири 85 м²

Дизайн ванної кімнати в трикімнатній квартирі: сучасний стиль, еко-мотиви та функціональність

Натуральні матеріали та мінімалістичний дизайн роблять ванну кімнату спокійною та затишною.Ця квартира розташована в ЖК Homecity. Вона виконана в мінімалістичному стилі. Тут переважають коричневі і сірі тони.

Коричневий інтер’єр трикімнатної квартири

Інтер'єр трикімнатної квартири: елегантний дизайн, еко-мотиви та функціональний мінімалізм

М’яке ліжко та приємні кольори сприяють повноцінному відпочинку у спальні.

Сучасний дизайн трикімнатної квартири з використанням еко-мотивів та функціонального мінімалізму

Використання дерева та каменю створює відчуття єднання з природою.

Трикімнатна квартира: дизайн, поєднаний з функціональним мінімалізмом та екологічними рішеннями

Зручне робоче місце організоване в мінімалістичному стилі, наповнене світлом.

Інтер'єр трикімнатної квартири: функціональний мінімалізм з акцентом на еко-мотиви та сучасний дизайн

Прості лінії та відсутність зайвих деталей підкреслюють відчуття простору.

Дизайн трикімнатної квартири в стилі функціонального мінімалізму з використанням природних матеріалів

Шафа-купе з дзеркальними дверцятами візуально збільшує простір кімнати.

Дизайн інтер'єру трикімнатної квартири: еко-мотиви, сучасний стиль та функціональний мінімалізм

Кімнатні рослини додають свіжості та життя в інтер’єр трикімнатної квартири.Монохромна гамма з коричневими і сірими тонами – це тренд. Наші дизайнери розробили модний інтер’єр для молодої пари. Квартира знаходиться в московському ЖК Homecity.

Поєднання темних панелей і дзеркал робить інтер’єр ефектним. Підлога з світлої дошки “Косвік” підтримує комфорт. Вона також покращує освітлення в приміщеннях.

Нещодавні дослідження показують, що монохромні кольори позитивно впливають на емоційний стан. Вони допомагають створити атмосферу спокою і концентрації.

Комфорт на першому місці

Сучасний дизайн трикімнатної квартири з еко-мотивами: мінімалістичний інтер'єр, функціональність та затишок

Продумане планування та мінімум декору створюють відчуття простору та легкості в цій трикімнатній квартирі.Низький кутовий диван і дизайнерське крісло – вдалий дует. У сучасній вітальні його можна доповнити килимом і шторами в тон. Так зробили автори проєкту в ЖК Homecity.

Обирайте меблі з м’якими формами. Вони роблять інтер’єр більш затишним. Кутові дивани допомагають заощадити простір.

4. Безпека та комфорт у вашій квартирі

При проектуванні дизайну інтер’єру квартири важливо враховувати не лише естетичні аспекти, але й безпеку мешканців. Особливо це стосується сімей з дітьми.

Безпечні матеріали

Вибирайте матеріали, які не містять шкідливих речовин. Це стосується фарб, лаків, меблів та інших елементів інтер’єру. Переконайтеся, що вони мають відповідні сертифікати якості.

Натуральні матеріали, такі як дерево, бавовна та льон, є більш безпечними, ніж синтетичні аналоги. Вони не виділяють токсичних речовин і створюють більш здоровий мікроклімат у квартирі.

Безпечні меблі

Меблі повинні бути стійкими та не мати гострих кутів. Особливо це важливо для дитячої кімнати. Закріпіть високі шафи до стіни, щоб вони не перекинулися.

Вибирайте меблі з міцними кріпленнями. Переконайтеся, що вони витримують навантаження. Регулярно перевіряйте стан меблів та вчасно усувайте несправності.

Безпечне освітлення

Забезпечте достатнє освітлення в кожній кімнаті. Особливо це важливо для місць, де ви часто ходите вночі. Використовуйте нічні світильники або датчики руху.

Світло повинно бути м’яким і не сліпити очі. Уникайте використання занадто яскравих ламп. Віддавайте перевагу світлодіодним лампам, які не нагріваються.

Не забувайте про правила пожежної безпеки. Встановіть димові датчики та вогнегасники в квартирі. Переконайтеся, що всі члени сім’ї знають, як діяти в разі пожежі.

5. Еко мотиви в інтер’єрі: як створити гармонію з природою

Еко мотиви в інтер’єрі стають все більш популярними. Люди прагнуть створити в своїх оселях атмосферу гармонії з природою. Це не лише модно, але й корисно для здоров’я.

Використання натуральних матеріалів

Натуральні матеріали – це основа еко дизайну. Використовуйте дерево, камінь, бавовну, льон та інші природні матеріали в обробці стін, підлоги та меблів.

Вони не лише виглядають красиво, але й є екологічно чистими та безпечними для здоров’я. Віддавайте перевагу матеріалам з переробленої сировини.

Використання природних кольорів

Природні кольори створюють атмосферу спокою та гармонії. Використовуйте зелений, коричневий, бежевий, блакитний та інші кольори, які зустрічаються в природі.

Уникайте використання занадто яскравих та штучних кольорів. Вони можуть викликати дискомфорт та роздратування. Додайте акценти за допомогою живих рослин.

Використання живих рослин

Живі рослини – це не лише красиво, але й корисно. Вони очищають повітря, насичують його киснем та створюють атмосферу затишку. Розмістіть рослини в різних кімнатах квартири.

Вибирайте рослини, які відповідають умовам освітлення та вологості у вашій квартирі. Не забувайте про регулярний полив та догляд за рослинами.

Деякі рослини мають властивості очищати повітря від шкідливих речовин. Наприклад, хлорофітум, сансевієрія та спатифілум.

Економія енергії та води

Еко дизайн – це не лише про зовнішній вигляд, але й про екологічність. Використовуйте енергозберігаючі лампи та побутову техніку. Встановіть лічильники води та економте воду.

Віддавайте перевагу техніці класу А+++. Вона споживає найменше енергії. Вимикайте світло, коли виходите з кімнати. Не залишайте воду ввімкненою, коли вона не потрібна.

Пам’ятайте, що Дизайн інтер’єру квартири – це інвестиція у ваш комфорт та здоров’я. Не економте на якості матеріалів та роботі професіоналів.

6. Дизайн ванної кімнати: функціональність та стиль

Дизайн ванної кімнати повинен бути не лише красивим, але й функціональним. Важливо правильно організувати простір, щоб він був зручним та комфортним для всіх членів сім’ї.

Вибір сантехніки

Вибирайте сантехніку, яка відповідає розмірам вашої ванної кімнати. Для невеликих ванних кімнат підійдуть компактні моделі унітазів, раковин та душових кабін.

Віддавайте перевагу сантехніці з якісних матеріалів. Вона повинна бути міцною, довговічною та легко митися. Зверніть увагу на дизайн сантехніки. Він повинен гармоніювати з загальним стилем ванної кімнати.

Вибір плитки

Плитка – це один з основних елементів дизайну ванної кімнати. Вибирайте плитку, яка відповідає вашим смакам та бюджету. Вона повинна бути вологостійкою, міцною та легко митися.

Для невеликих ванних кімнат рекомендується використовувати світлу плитку. Вона візуально збільшує простір. Темна плитка підійде для великих ванних кімнат. Вона створює атмосферу затишку та розкоші.

Освітлення

Освітлення у ванній кімнаті повинно бути достатнім та комфортним. Використовуйте кілька джерел світла. Наприклад, стельовий світильник, бра біля дзеркала та підсвітку в душовій кабіні.

Світло повинно бути м’яким та не сліпити очі. Використовуйте світлодіодні лампи. Вони споживають мало енергії та мають довгий термін служби.

Не забувайте про вентиляцію у ванній кімнаті. Вона допомагає запобігти утворенню грибка та плісняви. Встановіть вентилятор або використовуйте природну вентиляцію.

Аксесуари

Аксесуари роблять ванну кімнату більш зручною та функціональною. Використовуйте мильниці, стаканчики для зубних щіток, тримачі для рушників та інші корисні аксесуари.

Вибирайте аксесуари, які відповідають стилю ванної кімнати. Вони повинні бути виготовлені з якісних матеріалів. Зверніть увагу на їх колір та форму.

7. Важлива інформація про можливі помилки

При плануванні дизайну 3-кімнатної квартири важливо враховувати потреби всіх членів сім’ї. Не робіть помилок, які можуть негативно вплинути на ваш комфорт. Не перевантажуйте простір зайвими речами. Не економте на якості матеріалів. Не забувайте про безпеку. Запросіть професійного дизайнера, якщо вам потрібна допомога. Він допоможе вам створити інтер’єр вашої мрії.

Часті запитання

Визначте функціональні зони, використовуйте багатофункціональні меблі, вертикальне зберігання та світлі кольори для візуального розширення простору.
Віддавайте перевагу натуральним та екологічно чистим матеріалам, таким як дерево, камінь, бавовна та льон. Вони створюють здорову та затишну атмосферу.
Оцініть
Функціональний мінімалізм: рішення для затишної 3-кімнатної квартири - 6 - SeWerIn

Про автора: Марина Сікора

Марина Сікора – експерт з дизайну інтер'єру з понад 8-річним досвідом створення функціональних та естетично привабливих просторів. Спеціалізується на стилістиці, колористиці та ергономіці житлових приміщень. Авторка понад 50 успішних проектів, від квартир до офісів. Фіналістка конкурсу "Інтер'єр року" (2021).

3 думки про “Функціональний мінімалізм: рішення для затишної 3-кімнатної квартири

  1. Наталія каже:

    Наталіє, прочитала – і наче у власній квартирі побувала! Завжди мріяла про таку ванну кімнату, щоб було світло і просторо! Треба чоловікові показати, може, наважимось на ремонт! 🙂

  2. Дмитро каже:

    Мінімалізм – це, звісно, добре, але головне, щоб за цією функціональністю не загубилася індивідуальність. Бо інакше квартира перетвориться на безликий офіс. Хоча, прозорі рішення для ванної – це цікаво, треба подумати.

  3. Наталія каже:

    Наталіє, та це ж просто магія якась! У нас якраз 80 квадратів, і я вже зневірилась, що можна дихати вільно. А тут – прозоре скло! Геніально, треба терміново чоловікові показати, бо ванна реально тисне!

Залишити коментар до Наталія Скасувати коментар

Ваша e-mail адреса не оприлюднюватиметься. Обов’язкові поля позначені *