Ні, дизайн-проєкт – це не просто красиві картинки. Це детальний план, який допомагає уникнути помилок, заощадити час і гроші. Він визначає кожен аспект вашого майбутнього житла, від розміщення розеток до вибору кольору стін.
Багато хто вважає, що дизайн-проєкт – це зайва трата. Але насправді він може суттєво зменшити витрати на ремонт. З детальним планом ви точно знатимете, що і де купувати, скільки матеріалів потрібно, і які роботи необхідно виконати. Це допомагає уникнути непотрібних покупок, переробок і розчарувань.
У цій статті ми розберемося, навіщо потрібен дизайн-проєкт трикімнатної квартири, які етапи він включає, і яких помилок слід уникати. Ми розглянемо різні стилі, актуальні в 2026 році, та поради щодо створення затишного і функціонального простору.
За статистикою, дизайн-проєкт допомагає заощадити до 30% коштів на ремонті. Це відбувається завдяки точному плануванню, уникненню помилок та переробок, а також вигідним закупівлям матеріалів.
Що таке дизайн-проєкт і навіщо він потрібен?
Дизайн-проєкт – це комплексний документ, що включає в себе:
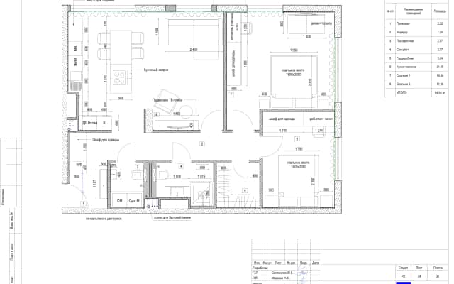
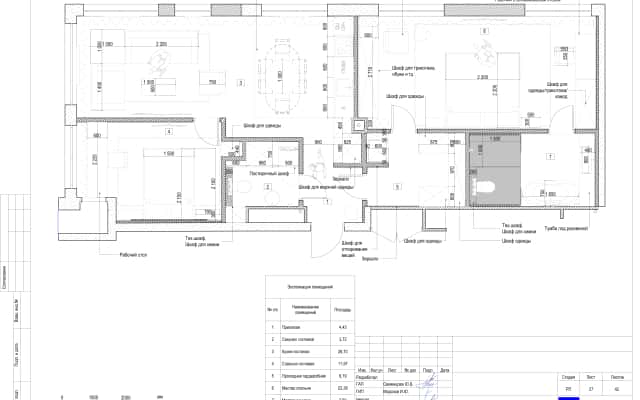
- Планувальні рішення (розміщення меблів, перегородок).
- Візуалізації (3D-моделі майбутнього інтер'єру).
- Креслення (електрика, сантехніка, опалення).
- Специфікації (перелік матеріалів, меблів, обладнання).
Він потрібен для того, щоб:
- Заздалегідь побачити, як виглядатиме квартира після ремонту.
- Уникнути помилок у плануванні та дизайні.
- Оптимізувати витрати на ремонт.
- Створити функціональний і комфортний простір.
- Отримати чітке завдання для будівельної бригади.
Без дизайн-проєкту важко уявити собі кінцевий результат і скоординувати роботу різних спеціалістів. Це може призвести до затримок, додаткових витрат і незадоволення результатом.
Переваги дизайн-проєкту
Розглянемо детальніше основні переваги замовлення дизайн-проєкту для вашої трикімнатної квартири:
- Візуалізація: Ви зможете побачити, як виглядатиме ваша квартира ще до початку ремонтних робіт. Це допоможе уникнути розчарувань і внести зміни заздалегідь.
- Економія: Точний розрахунок матеріалів та робіт допоможе уникнути зайвих витрат. Ви не будете купувати зайве і зможете порівняти ціни різних постачальників.
- Функціональність: Дизайнер допоможе створити простір, який відповідає вашим потребам і стилю життя. Кожен куток буде максимально корисним і зручним.
- Координація: Наявність дизайн-проєкту полегшує комунікацію з будівельною бригадою. Всі розуміють, що потрібно зробити, і зменшується ризик непорозумінь.
- Унікальність: Дизайнер допоможе створити інтер’єр, який відображає вашу індивідуальність. Ваша квартира буде унікальною і неповторною.
При виборі дизайнера зверніть увагу на його портфоліо, досвід роботи і відгуки клієнтів. Важливо знайти людину, з якою вам буде комфортно працювати, і яка розуміє ваші потреби.
Основні етапи розробки дизайн-проєкту
Розробка дизайн-проєкту – це складний процес, який складається з кількох етапів:
- Знайомство і обговорення: Ви зустрічаєтесь з дизайнером, обговорюєте ваші побажання, стиль життя, бюджет і терміни.
- Заміри і планування: Дизайнер робить заміри квартири, розробляє кілька варіантів планування з розміщенням меблів і обладнання.
- Візуалізація: Створюються 3D-моделі майбутнього інтер’єру, щоб ви могли побачити, як виглядатиме ваша квартира.
- Розробка креслень: Готуються креслення для будівельної бригади з розміщенням електрики, сантехніки, опалення, вентиляції.
- Специфікація: Складається перелік матеріалів, меблів, обладнання з зазначенням кількості, виробника і ціни.
- Авторський нагляд: Дизайнер контролює виконання робіт, щоб все відповідало дизайн-проєкту.
Кожен етап важливий для створення якісного і продуманого дизайн-проєкту. Важливо активно співпрацювати з дизайнером і висловлювати свої побажання.
Основні помилки при розробці дизайн-проєкту
При розробці дизайн-проєкту можна допустити помилки, які можуть призвести до додаткових витрат і розчарувань. Ось деякі з них:
- Відсутність чіткого планування: Недостатньо продумати розміщення меблів і обладнання, не врахувати потреби всіх членів сім’ї.
- Неправильний вибір стилю: Вибрати стиль, який не відповідає розмірам і плануванню квартири, або не враховує ваш спосіб життя.
- Економія на матеріалах: Використовувати дешеві матеріали, які швидко зношуються і втрачають свій вигляд.
- Непрофесійні виконавці: Найняти некваліфікованих будівельників, які можуть зіпсувати матеріали і не дотриматись креслень.
- Відсутність авторського нагляду: Не контролювати виконання робіт, дозволити будівельникам відступати від дизайн-проєкту.
Уникайте поспішних рішень і ретельно плануйте кожен етап ремонту. Звертайтесь до професіоналів і не економте на якості матеріалів і робіт.
Скільки коштує дизайн-проєкт трикімнатної квартири в 2026 році?
Ціна дизайн-проєкту залежить від багатьох факторів: площі квартири, стилю, складності робіт, досвіду дизайнера. В середньому, вартість дизайн-проєкту трикімнатної квартири в 2026 році коливається від 500 до 2000 грн за квадратний метр.
Наприклад, для квартири площею 80 квадратних метрів, вартість дизайн-проєкту може становити від 40 000 до 160 000 грн. Це значна сума, але вона може окупитися завдяки економії на матеріалах і роботах, а також уникненню помилок і переробок.
Ось орієнтовні ціни на різні види дизайн-проєктів:
- Ескізний проєкт: 500-800 грн/м² (планування, візуалізація).
- Повний проєкт: 1000-1500 грн/м² (планування, візуалізація, креслення, специфікація).
- Преміум проєкт: 1500-2000 грн/м² (повний проєкт + авторський нагляд).
Вибирайте дизайнера, який пропонує прозорі ціни і чітко визначає обсяг робіт. Важливо розуміти, за що ви платите, і які послуги включені у вартість.
Тренди дизайну інтер’єру квартири 2026
Дизайн інтер’єру постійно змінюється, з’являються нові тенденції і матеріали. У 2026 році актуальними будуть такі напрямки:
- Мінімалізм: Простір, функціональність, відсутність зайвих деталей.
- Еко-мотиви: Використання натуральних матеріалів, рослин, природних кольорів.
- Сучасний стиль: Поєднання мінімалізму з елементами хай-тек, використання сучасних технологій і матеріалів.
- Скандинавський стиль: Світлі кольори, натуральні матеріали, затишок і комфорт.
- Лофт: Відкритий простір, цегляні стіни, металеві конструкції, індустріальний стиль.
Вибирайте стиль, який відповідає вашому смаку і способу життя. Не бійтесь експериментувати і поєднувати різні стилі, щоб створити унікальний інтер’єр.
Сучасний стиль у трикімнатній квартирі
Сучасний стиль – це поєднання мінімалізму, функціональності і технологічності. Він характеризується чіткими лініями, нейтральними кольорами, використанням сучасних матеріалів і технологій. Це чудовий вибір для тих, хто цінує простір, зручність і сучасний дизайн.
Основні риси сучасного стилю:
- Мінімалізм: Відсутність зайвих деталей, функціональні меблі, багато вільного простору.
- Нейтральні кольори: Білий, сірий, бежевий, чорний.
- Сучасні матеріали: Скло, метал, пластик, дерево.
- Технологічність: Використання сучасних технологій, таких як “розумний дім”, LED-освітлення, сенсорні вимикачі.
- Прості форми: Чіткі лінії, геометричні форми, відсутність складних декоративних елементів.
В сучасному стилі велика увага приділяється освітленню. Використовуйте різні джерела світла: точкові світильники, люстри, бра, LED-стрічки. Це допоможе створити затишну атмосферу і підкреслити функціональні зони.
Експерти рекомендують використовувати в сучасному інтер’єрі меблі-трансформери. Вони дозволяють економити простір і легко змінювати функціональність кімнати.
Еко-мотиви в дизайні інтер’єру 2026
Еко-мотиви – це використання натуральних матеріалів, рослин, природних кольорів і текстур. Це спосіб створити затишний і здоровий простір, який нагадує про природу і сприяє релаксації. В 2026 році еко-дизайн особливо актуальний, адже люди все більше цінують зв’язок з природою і прагнуть жити в гармонії з навколишнім середовищем.
Основні елементи еко-дизайну:
- Натуральні матеріали: Дерево, камінь, бамбук, глина, льон, бавовна.
- Природні кольори: Зелений, коричневий, бежевий, блакитний, сірий.
- Рослини: Кімнатні рослини, вертикальне озеленення, флораріуми.
- Природне освітлення: Великі вікна, світлі штори, використання дзеркал для збільшення освітленості.
- Екологічні меблі: Меблі з перероблених матеріалів, з сертифікатом екологічної безпеки.
Еко-дизайн – це не тільки модно, але й корисно для здоров’я. Натуральні матеріали не виділяють шкідливих речовин, а рослини очищають повітря і створюють сприятливий мікроклімат.
Зверніть увагу на вибір текстилю. Використовуйте льон, бавовну, шерсть, шовк. Ці тканини приємні на дотик, добре пропускають повітря і не викликають алергії.
Приклади дизайну трикімнатних квартир
Розглянемо кілька прикладів дизайну трикімнатних квартир, щоб ви могли надихнутися і знайти ідеї для свого житла.
Абсолютна прозорість

Душова перегородка з прозорого скла – це сучасне і стильне рішення для ванної кімнати. Вона візуально збільшує простір, робить його більш світлим і просторим. Особливо актуально для невеликих ванних кімнат, де кожен сантиметр на рахунку.
Розсувні душові перегородки з прозорого загартованого скла економлять простір, що робить їх ідеальними для маленьких ванних кімнат і суміщених санвузлів. Таке рішення досить естетичне і функціональне. Загартоване скло міцне та безпечне. Навіть якщо його розбити, воно розсиплеться на дрібні, негострі уламки.
Для догляду за скляною перегородкою використовуйте спеціальні засоби для миття скла. Вони допоможуть уникнути розводів і зберегти блиск.
5. Чарівність простоти. Дизайн 3-кімнатної квартири 85 м²

Цей дизайн квартири площею 85 м² в сучасному стилі в ЖК Nagatino i-Land – чудовий приклад того, як можна створити затишний і функціональний простір для сім’ї. Тут багато світла і повітря, відчувається близькість до природи і любов до комфорту.
Мотиви дерева і каменю в інтер’єрі квартири






У дизайні цієї трикімнатної квартири в ЖК Nagatino i-Land багато світла та повітря, відчувається близькість до природи та любов до комфорту. Саме цього й хотіли замовники — доросла жінка та її мама, на прохання яких у квартирі зробили перепланування, об’єднавши кухню з вітальнею, та змінили простір, покращивши його ергономіку. Використання дерева і каменю додає інтер’єру тепла і затишку, робить його більш природним і гармонійним.
Унікальний арт-об’єкт

Інтер’єр передпокою прикрашає дизайнерська консоль ручної роботи, встановлена на тлі стіни, обробленої 3D-панелями, і доповнена круглим декоративним панно з підсвічуванням. Цей арт-об’єкт відразу вводить тему природного каменю в інтер’єрі, яка отримає свій розвиток в інших приміщеннях квартири. Це цікаве і оригінальне рішення, яке робить інтер’єр унікальним і неповторним.
Дизайнерські консолі, виконані з натуральних матеріалів, таких як дерево або камінь, додають
Фотогалерея













Оце так! Я завжди думав, що дизайн-проєкт – то для багатіїв! А тут виходить, що я, навпаки, переплачую, роблячи все навмання! Треба терміново замовляти, щоб хоч встигнути до подорожчання будматеріалів! Дякую, що відкрили очі!
Раніше думав, що дизайн-проєкт – це лише для великих квартир. Тепер бачу, що і для “трьошки” може бути корисним, особливо з точки зору економії. Треба буде розібратися глибше. )
Та ну, 30% економії? Звучить як чергова рекламна байка. От візьмусь сам робити, точно буде дешевше. Хоча потім, як завжди, доведеться переробляти… Може, й справді варто задуматись. Але ж де знайти нормального дизайнера, а не просто малювальника картинок?!
Прочитав, і згадав, як без проєкту вляпався у перероблювання проводки. Економія вийшла боком, довелося платити двічі. Тепер тільки з проєктом, воно якось надійніше.