Мрієте про затишний куточок у вашому саду, де можна відпочити та насолодитися природою? Лавка з дерева, зроблена своїми руками, стане ідеальним рішенням. Це не тільки функціональний предмет меблів, але й чудовий спосіб проявити свою творчість та додати унікальності вашому подвір’ю. Зробити лавку з дерева своїми руками не так складно, як може здатися на перший погляд. Маючи базові інструменти та трохи терпіння, ви зможете створити чудову садову лавку, яка буде радувати вас довгі роки.
Вибір матеріалів та інструментів
Для успішної роботи над лавкою з дерева необхідно правильно підібрати матеріали та інструменти. Від цього залежить не тільки зовнішній вигляд готового виробу, але й його міцність та довговічність. Розгляньмо детальніше, що саме вам знадобиться.

Ось перелік необхідних речей:
- Пиломатеріали. Важливо обрати попередньо висушену деревину, оброблену антисептиками. Це захистить її від гниття та шкідників. Для лавки, яка стоятиме на вулиці, найкраще підійдуть листяні породи дерева, такі як дуб або модрина. Хвойні, наприклад сосна, теж підходять, але потребують ретельнішої обробки. Не рекомендується використовувати ясен, вільху, ялину та кедр, бо вони не люблять вологості. Оптимальна товщина дощок – від 2 до 5 см. З товстішими важче працювати, а тонші можуть не витримати вагу. З мого досвіду, саме сосна є найбільш популярним матеріалом. Вона доступна за ціною та легко обробляється. Проте не забувайте про якісну обробку антисептиком!
Завжди обирайте деревину з мінімальною кількістю сучків. Це полегшить обробку та забезпечить міцність конструкції.
- Інструменти для різання дерева. Для початку вам знадобиться ручна ножівка, стусло або кутник для точних пропилів під кутом, а також верстак або стіл для фіксації матеріалів. Якщо у вас є електролобзик, торцювальна або циркулярна пила – чудово. Вони значно полегшать роботу та зроблять зрізи більш якісними. Але просту лавку можна зробити і з ручними інструментами.
- Саморізи. Обирайте саморізи, спеціально призначені для дерева. Їх довжина має бути мінімум на 10 мм більшою за товщину дошки. Краще використовувати конструкційні саморізи, які зменшують ризик розтріскування деревини. Для садової лавки, яка піддаватиметься впливу вологи, варто обрати оцинковані саморізи або інші, захищені від корозії. Запам’ятайте: краще перестрахуватися і взяти саморізи з запасом по довжині. Так з’єднання будуть більш надійними.
- Дриль, свердла, шуруповерт та столярний клей. Дриль знадобиться для попереднього свердління отворів під саморізи, щоб уникнути розтріскування дерева. Свердла мають бути на 1-2 мм меншими за діаметр саморізів. Шуруповерт значно полегшить процес закручування. Столярний клей, стійкий до вологи та перепадів температур, зробить з’єднання більш міцними. Хоча клей не є обов’язковим, його використання значно підвищує надійність конструкції.
- Шліфувальна машинка та наждачний папір. Якщо дошки не оброблені на виробництві, їх потрібно відшліфувати перед початком роботи. Якщо ж ви замовили якісні пиломатеріали, достатньо обробити лише зрізи.
Пам’ятайте про безпеку! Під час шліфування використовуйте захисні окуляри та респіратор, щоб уникнути потрапляння пилу в очі та дихальні шляхи.
- Антисептик для деревини. Обов’язково обробіть антисептиком всі зрізи, щоб захистити деревину від грибків, плісняви та шкідників. Якщо виробник не обробив пиломатеріали перед продажем, потрібно обробити антисептиком всю поверхню та дати їй висохнути перед початком робіт. Обирайте захисний засіб, призначений для зовнішніх робіт. З власного досвіду, найкраще наносити антисептик в декілька шарів, даючи кожному шару повністю висохнути. Це забезпечить максимальний захист деревини.
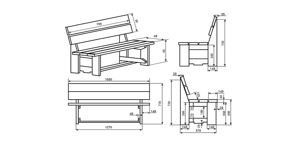
Нижче наведено креслення лавки з кріпленням на клей і саморізи. Досвідчені майстри можуть зібрати лавку без жодного цвяха, вирізаючи шипи та пази в дошках, з яких вона зроблена. Але це складна робота, що вимагає знань і використання спеціальних інструментів.
Креслення лавочки з дерева та покрокові інструкції зі збирання
Наведений нижче креслення може здатися складним, але насправді зробити таку лавку з дерева зі спинкою досить легко, якщо у вас є мінімальний досвід столярних робіт. Ключовим є уважність та точність на кожному етапі.

Якщо боїтеся зіпсувати дорогі пиломатеріали, спочатку зробіть заготовку з картону або гіпсокартону. Перенесіть креслення на них в натуральну величину, виріжте “дошки” для спинки, сидіння, кріплень між ними. Скріпіть клеєм або меблельним степлером. Під час роботи безпосередньо з дошками кожну нову дерев’яну деталь підносьте до картонної заготовки та звіряйте форму та розміри. Так ви точно не помилитеся під час складання. Це дасть вам можливість потренуватися та уникнути помилок на фінальному етапі. З мого досвіду, такий підхід значно економить час та матеріали.
Картонний макет влаштовує за розмірами та формою? Можна приступати до роботи. У першу чергу наріжте пиломатеріали на елементи потрібної довжини, ширини, висоти. Не поспішайте! Краще кілька разів переміряти, ніж відрізати зайве. Точність – запорука успіху.
- Спинка – дві дошки довжиною 1,5-1,55 метра, шириною – близько 14 см. Сидіння – ті ж самі розміри, але вже три дошки.
- Передні ніжки – дві дошки довжиною 36 см, шириною 14 см. Задні ніжки одночасно виконують роль основи для спинки, тому в 2 рази довші. Їх верхню частину потрібно зрізати під кутом. З висоти 40 см ведіть косу лінію, щоб верхній кут дорівнював приблизно 20-25 градусам. Це забезпечить зручний нахил спинки, але не дасть конструкції впасти назад після встановлення. Якщо ви збираєтеся вкопувати лавку в землю, заздалегідь передбачте запас довжини ніжок у 0,5 метра мінімум. Наведені на кресленні розміри розраховані на людей стандартного зросту. Щоб зробити місце відпочинку максимально зручним, підлаштуйте його під зріст тих, хто житиме в будинку.
Експерти рекомендують враховувати кут нахилу спинки. Оптимальний кут для комфортного сидіння – 100-110 градусів.
- Чотири планки, що з’єднують попарно задні ніжки з передніми зліва та справа. Верхні також відіграють роль додаткової опори для сидіння. Довжина кожної – 57 см, якщо ви дотримувалися розмірів, зазначених вище. Ширину підбирайте з урахуванням обраної відстані між підлогою та сидінням. Між опорними планками слід залишити зазор мінімум в 1-2 см. Землі вони торкатися не повинні.
- Центральна опорна планка. Іде паралельно сидінню, кріпиться до нижніх опорних планок. Розвантажує інші елементи конструкції, допомагає опорам витримувати вагу тих, хто сидить. Довжина – 119 см, якщо ви вибрали відстань між ніжками, зазначену на кресленні. Зверніть увагу, що центральна дошка встановлюється довгим торцем вгору, а не лежить плазом, як дошки сидіння.
Нарізайте елементи поступово, звіряючи з картонною заготовкою, прикладаючи один до одного. Перевіряйте якість зрізу, стан торців. За потреби відшліфуйте їх машинкою або хоча б наждачним папером. Обробте засобами для захисту від шкідників. Якщо дерево тріснуло під час обробки, візьміть інші пиломатеріали. Тріщина під навантаженням буде тільки збільшуватися, навіть якщо ви спробуєте закрити її шпаклівкою по дереву.
Не викидайте обрізки деревини! Їх можна використати для створення декоративних елементів або для інших дрібних робіт у саду.
Збирання починають з бічного каркаса:
- Візьміть одну передню та одну задню ніжку. Скріпіть двома опорними планками. Для фіксації прикладіть елементи один до одного. Олівцем або маркером намітьте точки з’єднання. Просвердліть в них отвори на 1/3 довжини саморізів. Поверхні навколо змастіть столярним клеєм. Шуруповертом закріпіть саморізи, переконайтеся в надійності з’єднання. За тією ж схемою зберіть другу боковину.
- Переходьте до кріплення нижньої опорної планки. Ретельно проміряйте всі деталі, перш ніж свердлити отвори. Уважно подивіться на креслення: для габаритів, зазначених на ньому, відстань між ніжками становить 127 см (при ширині сидіння в 1,5 метра). Якщо ви зменшили або збільшили сидячі місця, крок між нижніми опорами потрібно змінити пропорційно цьому. В іншому випадку лавочка втратить стійкість.
- Після складання каркаса залишиться поставити на місце дошки спинки, сидіння. Кріпіть їх не впритул одна до одної, а з кроком в 0,5-1 см. Навіть добре просушена деревина під відкритим небом може злегка розширюватися або стискатися в залежності від вологості, температури. Зазор компенсує невелику деформацію натурального матеріалу.
У виробу на кресленні дуже простий дизайн. Базову модель можна прикрасити фігурним різьбленням, яскравим фарбуванням після того, як ви переконаєтеся в міцності каркаса. Насправді, можливості для декорування безмежні! Все залежить від вашої фантазії та навичок. З мого досвіду, чудово виглядають лавки з елементами ковки або з використанням мозаїки.
Оформлення та монтаж
Не поспішайте виносити готову лавку в сад. Навіть якщо ви використовували для роботи дерево, оброблене антисептиками, його потрібно пофарбувати або лакувати. Без додаткового захисту конструкція швидко зруйнується. Виберіть фарбу або лак, призначені для зовнішніх робіт, які захищають від ультрафіолетового випромінювання та вологи. Нанесіть декілька шарів, даючи кожному шару повністю висохнути. Це забезпечить максимальний захист та продовжить термін служби вашої лавки. Пам’ятайте, що правильний догляд – це запорука довговічності!
| Параметр | Опис |
|---|---|
| Захист від вологи | Використовуйте вологостійкі фарби та лаки, щоб запобігти гниттю деревини. |
| Захист від УФ-випромінювання | Обирайте засоби з УФ-фільтрами, щоб фарба не вигорала на сонці. |
| Термін служби | Регулярно оновлюйте покриття, щоб підтримувати захисні властивості. |
При виборі фарби або лаку для вашої лавки, важливо враховувати не тільки захисні властивості, але й естетичний вигляд. Ви можете обрати колір, який гармонійно впишеться в ландшафт вашого саду, або ж навпаки, зробити лавку яскравим акцентом. Експериментуйте з кольорами та текстурами, щоб створити унікальний предмет меблів, який буде радувати вас та ваших гостей. Також варто звернути увагу на екологічність матеріалів. Обирайте фарби та лаки на водній основі, які не містять шкідливих речовин та не забруднюють навколишнє середовище.

З кресленнями варто бути уважним. Я колись зекономив, взяв з інтернету “як є”, а потім довелося переробляти, бо сидіти було незручно. Краще вже самому все виміряти під себе.
Ого, крутяк! Завжди хотів мати таку лавку в саду, щоб зависати там з друзями, слухати музончик і дивитись на зорі! Треба терміново спробувати зробити! 🔥
Зрозуміло, що все не так вже й складно. Треба спробувати, може, й в мене вийде щось путнє для саду!
Круто! Давно хотів щось подібне змайструвати на дачі. Тепер точно спробую, бо все так детально розписано. Сподіваюсь, вийде не гірше, ніж на фото! 😉