Як спланувати ремонт трикімнатної квартири: поради експертів та ідеї для натхнення

5 хв

Можливо, ви шукаєте ідеальний варіант. І відчуваєте невпевненість. Давайте це виправимо! Разом ми розглянемо всі етапи. І ви дізнаєтесь, як зробити ремонт вашої мрії.

Сучасний дизайн трикімнатної квартири: інтер'єр з елементами дерева та мінімалізму
Дерев’яні панелі та мінімалістичні меблі створюють відчуття простору та природної гармонії.

Ремонт трикімнатної квартири – популярна послуга. Особливо серед міських жителів. Три кімнати – це мінімум для сім’ї. Часто об’єднують кухню та вітальню. Це зручне планувальне рішення.

Планування ремонту трикімнатної квартири: візуалізація кухні-вітальні з барною стійкою
Барна стійка – чудовий спосіб зонування простору та додавання функціональності кухні-вітальні.

Дизайн сучасної вітальні-їдальні

Дизайн інтер’єру – важливий етап. Він допомагає створити комфортний простір. Важливо враховувати потреби всіх мешканців. Тоді квартира стане затишною та функціональною.

Ідеї для ремонту трикімнатної квартири: світла спальня з акцентною стіною за ліжком
Акцентна стіна за ліжком додає глибини та індивідуальності інтер’єру спальні.

Вигляд з вітальні-їдальні на кухню

При виборі дизайну зверніть увагу на стиль. Він повинен вам подобатись. Кольори мають бути приємними. Меблі – зручними та практичними.

Капітальний ремонт трикімнатної квартири: ванна кімната з сучасною сантехнікою та плиткою
Використання сучасних матеріалів та сантехніки робить ванну кімнату не тільки функціональною, але й стильною.

Біла кухня трикімнатної квартири

Ціни та вартість ремонту з матеріалами під ключ

Хочете дізнатись вартість ремонту? Ознайомтесь з прикладами робіт. Їх можна знайти в портфоліо. Там є дизайн та ремонт квартир.

Дизайн інтер'єру трикімнатної квартири: дитяча кімната з яскравими акцентами та ігровою зоною
Продумана ігрова зона та яскраві кольори створюють веселу та надихаючу атмосферу в дитячій кімнаті.

Ремонт квартир від професіоналів

Актуальні ціни на ремонт завжди можна уточнити. Зазвичай на сторінці з цінами. Часто при замовленні ремонту вартість дизайн-проєкту повертається. Це вигідна пропозиція.

Дизайн інтер’єру в подарунок!

Багато компаній пропонують унікальні інтер’єри. Вони роблять їх для клієнтів. Деякі навіть готові створити дизайн безкоштовно. Звісно, якщо ви замовите ремонт у них.

Зверніть увагу на акції та знижки. Це допоможе заощадити кошти. Обговоріть всі деталі з дизайнером. Він допоможе втілити ваші мрії в реальність.

Що входить у проєкт ремонту?

Вартість ремонту трикімнатної квартири: приклад кошторису на матеріали та роботи
Правильне планування бюджету – запорука успішного ремонту без неприємних сюрпризів та перевитрат.

Вітальня трикімнатної квартири

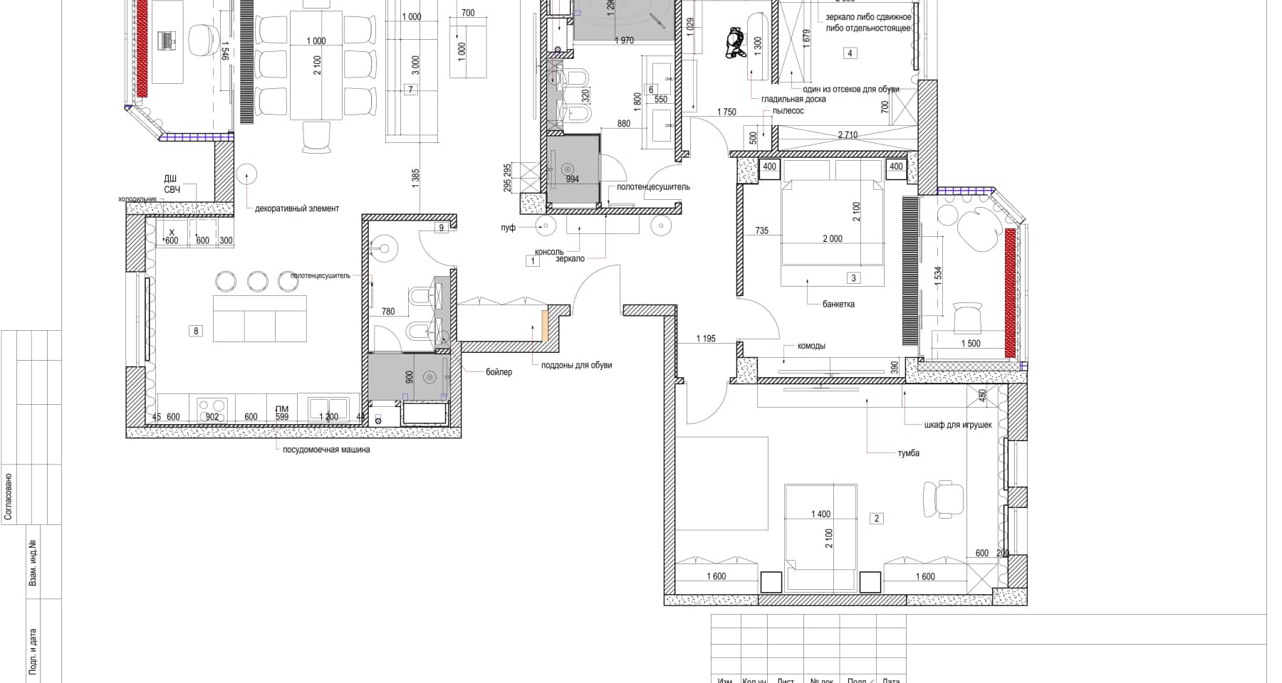
Компанії спеціалізуються на капітальному ремонті. Це стосується квартир і будинків. Такий ремонт потребує підготовки. На першому етапі розробляється дизайн-проєкт. Він включає:

  1. Планувальні рішення.
  2. Робочі креслення. (плани монтажу, демонтажу, розстановки меблів).
  3. Експлікація підлог і т.д.
  4. Візуалізація майбутнього інтер’єру.

Перепланування трикімнатної квартири: об'єднання кухні з вітальнею для створення відкритого простору
Об’єднання кухні з вітальнею – популярне рішення для створення сучасного та функціонального простору.

Планування 3-кімнатної квартири

Проєкт допомагає контролювати процес. Замовники бачать результат заздалегідь. Робочі креслення полегшують задачу. Вони майже виключають помилки.

Важливо! Не починайте ремонт без проєкту. Це допоможе уникнути багатьох проблем. Проєкт – це інвестиція в успішний ремонт.

Гарантії та страхування ремонту

Інтер'єр трикімнатної квартири після ремонту: вітальня з великим диваном та телевізором
Великий диван та телевізор створюють комфортну зону для відпочинку та перегляду фільмів у вітальні.

Страхування ремонту

Ремонт квартири – це безпечно. Компанії надають гарантію. Гарантія діє на всі роботи. Це стосується оздоблення, сантехніки та іншого. Об’єкти страхуються під час виконання робіт.

Страхування ремонту – це додатковий захист. Воно покриває можливі ризики. Наприклад, затоплення або пожежу. Це дає спокій та впевненість.

Обов’язково уточніть умови гарантії. Дізнайтеся, що саме вона покриває. Переконайтеся, що компанія має ліцензію. Це важливо для вашої безпеки.

Терміни виконання ремонтних робіт

Ремонт трикімнатної квартири з нуля: приклад дизайну передпокою з дзеркалом та шафою-купе
Дзеркало та шафа-купе – необхідні елементи для організації простору в передпокої та створення відчуття простору.

Синій кухонний острів

Ремонт триває в середньому пів року. Графік робіт служить орієнтиром. Відділ комплектації знає, коли потрібна поставка. Він контролює обладнання та матеріали.

Сучасний дизайн трикімнатної квартири: балкон, перетворений на затишну зону відпочинку
Перетворення балкону на зону відпочинку – чудовий спосіб збільшити корисну площу квартири та створити затишний куточок для релаксу.

План-графік ремонтно-оздоблювальних робіт

Планування ремонту – це важливо. Воно допомагає уникнути затримок. Графік робіт дозволяє контролювати процес. Ви завжди будете знати, на якому етапі ремонт.

Цікавий факт: За даними статистики, 70% ремонтів закінчуються із запізненням. Це відбувається через погане планування та організацію. Тому, ретельно плануйте свій ремонт.

Вартість ремонту трикімнатної квартири: детальний огляд

Вартість ремонту трикімнатної квартири залежить від багатьох факторів. Розглянемо основні з них:

  • Площа квартири. Чим більша площа, тим вища вартість робіт та матеріалів.
  • Стан квартири. Якщо квартира потребує капітального ремонту, вартість буде вищою.
  • Вибрані матеріали. Ціна матеріалів може суттєво відрізнятись.
  • Складність дизайну. Складний дизайн потребує більше часу та зусиль.
  • Кваліфікація робітників. Досвідчені робітники коштують дорожче.

Будьте уважні при виборі будівельної бригади. Перевірте їхню репутацію та досвід. Не варто економити на якості робіт. Це може призвести до додаткових витрат у майбутньому.

Розглянемо приблизні ціни на різні види робіт:

Вид робіт Ціна за м² (грн) Примітки
Демонтажні роботи 150 – 300 Залежить від складності
Штукатурні роботи 200 – 400 Залежить від товщини шару
Малярні роботи 150 – 350 Залежить від кількості шарів
Плиткові роботи 400 – 800 Залежить від розміру плитки
Сантехнічні роботи Від 5000 грн за точку Залежить від складності
Електромонтажні роботи Від 3000 грн за точку Залежить від складності

Звичайно, це лише приблизні ціни. Точну вартість ремонту можна дізнатись після складання кошторису. Кошторис складається на основі дизайн-проєкту та обмірів квартири.

Ретельно проаналізуйте кошторис. Зверніть увагу на ціни на матеріали та роботи. Порівняйте ціни від різних компаній. Це допоможе вам заощадити кошти.

Економія на ремонті: корисні поради

Існує кілька способів заощадити на ремонті трикімнатної квартири:

  • Зробіть частину робіт самостійно. Наприклад, демонтаж або підготовчі роботи.
  • Вибирайте недорогі матеріали. Але не жертвуйте якістю.
  • Замовляйте матеріали оптом. Це може бути вигідніше.
  • Порівнюйте ціни від різних компаній.
  • Слідкуйте за акціями та знижками.

Знаєте ли ви, що планування ремонту заздалегідь може заощадити до 20% коштів? Ретельний вибір матеріалів та виконавців – запорука успішного та економного ремонту.

Сучасні тенденції в дизайні трикімнатних квартир

Сьогодні в дизайні трикімнатних квартир популярні такі тенденції:

  • Мінімалізм. Простота та функціональність.
  • Еко-стиль. Використання натуральних матеріалів.
  • Скандинавський стиль. Світлі кольори та затишок.
  • Лофт. Індустріальний стиль з відкритим плануванням.
  • Сучасна класика. Елегантність та комфорт.

Вибирайте стиль, який вам подобається. Головне, щоб квартира була затишною та функціональною.

Не бійтеся експериментувати з кольорами та матеріалами. Створіть свій унікальний інтер’єр. Зверніться до дизайнера за консультацією. Він допоможе вам втілити ваші ідеї в реальність.

Часті запитання

Вартість залежить від площі, стану квартири, вибраних матеріалів та складності дизайну. Приблизну вартість можна дізнатись після складання кошторису.
В середньому ремонт триває від 3 до 6 місяців. Залежить від обсягу робіт та складності дизайну.
Дизайн-проєкт не обов’язковий, але він допомагає спланувати ремонт та уникнути помилок. З дизайн-проєктом ви будете бачити кінцевий результат заздалегідь.
Перевірте репутацію бригади, їхній досвід та наявність ліцензії. Почитайте відгуки клієнтів. Порівняйте ціни від різних бригад.
5/5 - (1 голос)
Як спланувати ремонт трикімнатної квартири: поради експертів та ідеї для натхнення - 6 - SeWerIn

Про автора: Олег Новосад

Олег Новосад – експерт з інженерії з понад 12-річним досвідом у будівельних проєктах. Спеціалізується на переплануванні та модернізації приміщень, а також інженерних комунікаціях (електрика, сантехніка, вентиляція). Успішно реалізував понад 30 проєктів з ремонту квартир та офісів. Має сертифікати з електробезпеки та сантехнічних робіт.

5 думок про “Як спланувати ремонт трикімнатної квартири: поради експертів та ідеї для натхнення

  1. Анна каже:

    Прочитала і прямо видихнула з полегшенням! Стільки років живу у цій квартирі, а тільки зараз зрозуміла, що треба було з кухні починати. Об’єднання з вітальнею – геніально, треба обміркувати!

  2. Марія каже:

    Ох, нарешті стаття, яка розклала все по поличках! А то я вже замучилась уявляти, як впихнути все потрібне в ті три кімнати! Особливо сподобалась ідея з об’єднанням кухні та вітальні, це точно мій варіант!

  3. Олена каже:

    Ой, вже бачу, як моя “трішка” перетвориться на оазу затишку! Особливо сподобалась ідея з барною стійкою – давно мріяла про такий куточок для вечірніх посиденьок! Треба терміново братися за планування!

  4. Віктор каже:

    Таке враження, що експерти ніколи самі ремонт не робили. “Продумайте все до дрібниць”… Ага, а потім вилізе якась фігня, про яку ніхто не думав, і все полетить шкереберть.

  5. Олександр каже:

    Я б ще додав пункт про звукоізоляцію. Особливо, якщо в планах об’єднання кухні з вітальнею. Від витяжки і розмов все чутимеш. Перевірено на власному досвіді.

Залишити коментар до Анна Скасувати коментар

Ваша e-mail адреса не оприлюднюватиметься. Обов’язкові поля позначені *