Усі думають, що перепланування – це просто знесення стін. Але що, якщо найважливіше – це правильна підготовка документів?
Що, якщо від цього залежить, чи зможете ви взагалі змінити свою квартиру так, як мрієте?
Давайте розберемося, як зробити все правильно.

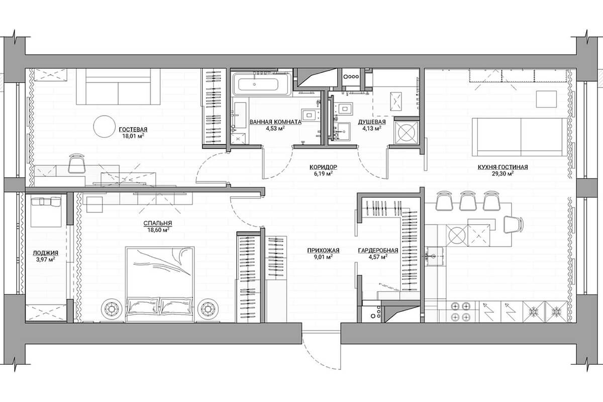
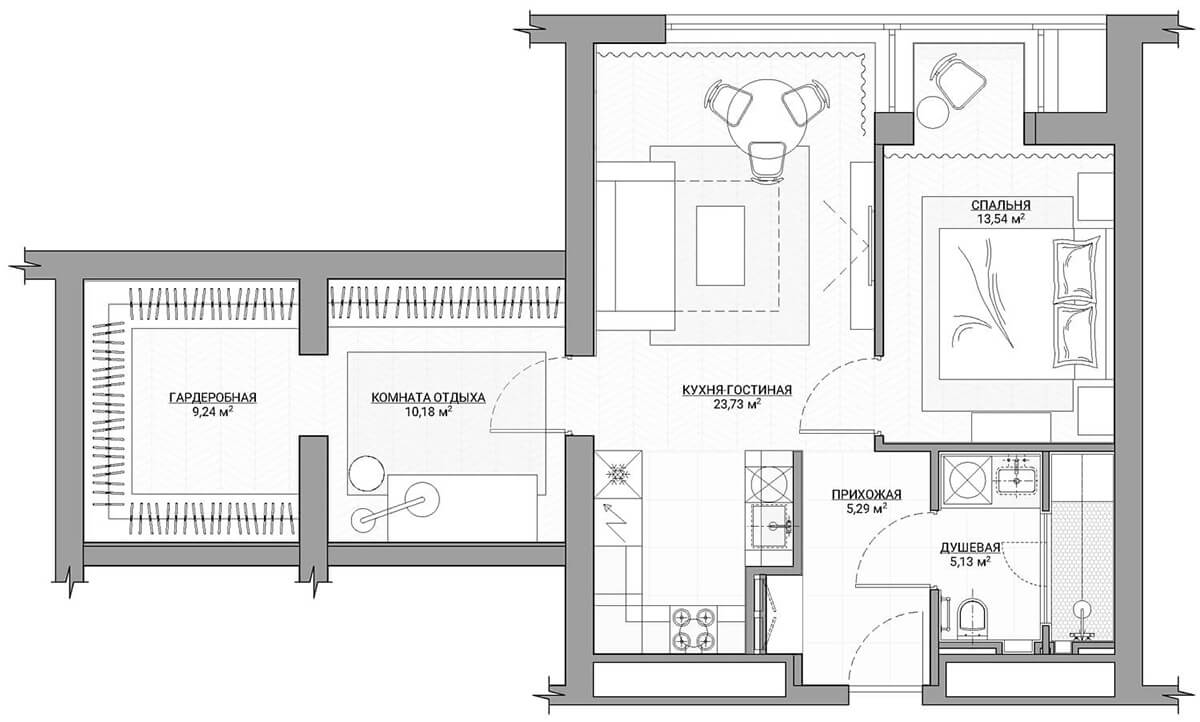
Успішне перепланування квартири покращує ергономіку та створює комфортне житло.
Багато квартир у новобудовах продаються з відкритим плануванням. Там можна робити майже все, що завгодно, без узгоджень. Але це не завжди так.
Більшість квартир все ж продаються з внутрішніми стінами. Якщо ви хочете змінити їх розташування, потрібно отримати дозвіл.

Перепланування дозволяє адаптувати житло під індивідуальні потреби та стиль життя.
Перепланування квартири – це серйозний крок. Він вимагає уваги до деталей і знання законів. Не варто нехтувати цими аспектами.
Пам’ятайте про можливі наслідки самовільних дій. Краще все зробити правильно з самого початку.

Об’єднання кімнат – популярний прийом для створення просторого та світлого інтер’єру.
Навіщо потрібне перепланування в новій квартирі?
квартири в новобудовах часто здаються сучасними та комфортними. Але іноді власники все одно хочуть щось змінити.
Чому так відбувається?
- Типові планування не завжди відповідають вашим уявленням про ідеальний дім. Комусь потрібна простора кухня-вітальня. Іншим – окремий кабінет або велика гардеробна. Перепланування дозволяє створити квартиру, яка повністю відповідає потребам сім’ї.
- Іноді забудовники роблять помилки в плануванні. Наприклад, невдале розташування кімнат або неефективне використання площі. Можуть бути маленькі або незручні санвузли. Перепланування допомагає виправити ці недоліки. Воно робить простір більш функціональним.
- Планування може бути вашою фішкою. Це збільшує ціну квартири при продажу. Особливо це важливо для апартаментів. Незвичайна планування створює “вау-ефект”. Це значно підвищує вартість.

Організація гардеробної кімнати звільняє простір від зайвих шаф та комодів.
Перепланування – це інвестиція у ваш комфорт. Це також потенційний спосіб збільшити вартість нерухомості.

Зміна планування ванної кімнати дозволяє встановити сучасну сантехніку та збільшити комфорт.
З чого почати: покрокова інструкція
Перепланування повинне відповідати вимогам закону. Необхідно пройти процедуру узгодження та оформлення.
Це може зайняти кілька тижнів. Тому починайте якомога раніше, відразу після отримання ключів.
Порядок дій:
- Отримайте технічний паспорт квартири. Це документ з інформацією про поточне планування.
- Розробіть проект перепланування. Це може зробити організація з ліцензією.
- Узгодьте проект у відповідних органах. Це можуть бути органи архітектури, санітарно-епідеміологічна служба, пожежна інспекція. Все залежить від типу перепланування.
- Виконайте будівельні роботи. Робіть це суворо за затвердженим проектом.
- Запросіть комісію для прийняття виконаних робіт. Зазвичай все приймають з першого разу. Але будьте готові до доопрацювань.
- Внесіть зміни до технічного паспорту квартири. Там повинно бути відображено нове планування.

Правильне перепланування допомагає максимально ефективно використовувати кожен квадратний метр.
Кожен етап важливий. Не пропускайте жодного кроку, щоб уникнути проблем у майбутньому.

Перепланування дитячої кімнати дозволяє створити функціональний та безпечний простір для дитини.
Пам’ятайте: самовільне перепланування може призвести до штрафів. І навіть до необхідності повернути квартиру до початкового стану.

Проект перепланування передбачає перенесення комунікацій для оптимального розміщення меблів.
Узгодження перепланування – це відповідальний процес. Але він необхідний для вашого спокою та безпеки.

Барна стійка – стильний елемент, що розділяє кухню та вітальню в перепланованому просторі.
Корисні поради
Деталізуйте проект максимально ретельно
Складіть детальний план майбутнього інтер’єру. Він повинен відображати всі аспекти.
- Розташування меблів і техніки. Це важливо для розміщення розеток і вимикачів.
- Точні розміри всіх елементів. Це стосується не тільки меблів, але і перегородок, отворів.
- Сценарії освітлення для різних зон квартири. Розташування, габарити світильників і система підключення.
- Особливості розташування прихованих комунікацій. Це важливо при демонтажі перегородок і підключенні техніки. Особливо нестандартної.

Перепланування квартири – це можливість створити житло вашої мрії, враховуючи всі побажання.
Чим більше деталей ви передбачите, тим менше несподіванок буде під час ремонту. Це заощадить ваш час і гроші.
Узгодьте проект перепланування ДО початку робіт
Не починайте будівельні роботи без офіційного дозволу. Деякі компанії пропонують почати відразу, щоб заощадити час. Вони кажуть, що “ніколи не було проблем”.
Це дуже ризиковано. Це може призвести до фінансових втрат і затягування термінів.
Ось простий приклад. Під час робіт трапляється аварія. Перепланування ще не узаконено. Тобто воно вважається самовільним. Це може призвести до позовів про відшкодування збитків, штрафів і приписів про повернення квартири до початкового стану.

Перепланування в новобудові потребує ретельного планування та узгодження з відповідними органами.
Пам’ятайте: відповідальність за незаконне перепланування несе власник квартири.

Важливо отримати дозвіл на перепланування, щоб уникнути проблем у майбутньому.
Рекомендації експертів
Експерти рекомендують звертати увагу на звукоізоляцію. Особливо, якщо ви об’єднуєте кухню з вітальнею. Це допоможе створити комфортний простір для відпочинку.

Продуманий проект допоможе реалізувати бажаний дизайн та функціональність простору.
Обирайте матеріали з урахуванням екологічних норм. Це важливо для вашого здоров’я та безпеки. Звертайте увагу на сертифікати якості.

Вибір якісних матеріалів забезпечить довговічність та безпеку вашого оновленого житла.
Ретельно контролюйте хід робіт
- Регулярно відвідуйте будівельний майданчик. Спілкуйтеся з виконробом. Переконайтеся, що все робиться за проектом і будівельними нормами.
- Перевіряйте якість матеріалів. Слідкуйте за дотриманням технологій будівництва.
- Фотографуйте та знімайте відео всіх етапів робіт. Це буде доказом у разі виникнення суперечок.
Якщо ви не впевнені у своїх знаннях, найміть незалежного технічного фахівця. Він буде контролювати хід робіт і виявляти можливі порушення.

Не забудьте внести зміни до технічного паспорту після завершення перепланування.
Факт: вартість перепланування залежить від складності проекту. Також впливає ціна матеріалів і вартість робіт.

Перепланування відкриває можливості для створення унікального та функціонального інтер’єру.
Перепланування квартири в новобудові дозволяє створити простір, який відповідає вашим потребам. Але важливо, щоб воно було законним і безпечним.
Тому довіряйте цю роботу професіоналам. Вони зроблять все правильно.
Корисний інсайт від реальних клієнтів: “Не економте на проекті перепланування. Якісний проект заощадить вам час і гроші в майбутньому”.
Вартість перепланування: орієнтовні ціни
Вартість перепланування квартири залежить від багатьох факторів. Це складність проекту, площа квартири, вартість матеріалів і робіт. Тому точну ціну можна дізнатися тільки після розробки проекту.
Але ось орієнтовні ціни на деякі послуги:
| Послуга | Вартість (грн) | Опис |
|---|---|---|
| Технічний паспорт квартири | Від 1500 | Документ з інформацією про поточне планування. |
| Проект перепланування | Від 5000 | Розробка проекту, що відповідає нормам і правилам. |
| Узгодження проекту | Від 3000 | Отримання дозволу на перепланування. |
| Будівельні роботи | Від 1000 за м2 | Вартість робіт залежить від складності. |
| Внесення змін до техпаспорту | Від 1000 | Відображення нового планування в документі. |
Варто враховувати, що це лише орієнтовні ціни. Вони можуть змінюватися в залежності від регіону та компанії, яка надає послуги. Тому ретельно вибирайте підрядників і порівнюйте пропозиції.
Увага: деякі роботи можуть вимагати додаткових витрат. Наприклад, якщо потрібно посилити несучі конструкції.

Ого, я завжди думав, що перепланування – це просто “бум-бац” і готово! А тут он воно що, ціла купа паперів! Тепер точно знатиму, куди йти і що робити, щоб не влетіти в халепу з цими стінами! Дякую, дуже вчасно натрапив на цю статтю! 🙂
Паперова тяганина… Звучить як ідеальний спосіб вбити творчий порив. Та й взагалі, хтось ще робить перепланування? В еру знімних квартир?
Звучить складно, але цікаво! Завжди думав, що головне – це бригада, яка все зробить, а тут ще й паперова тяганина важлива. Буду знати тепер.
Ого, я навіть не підозрював, що там стільки паперів треба! Думав, просто стіни повалив і все! Тепер точно все зроблю по закону, щоб потім не було сюрпризів!
Бюрократія… Прочитала і згадала, як три роки чекала дозволу на перенесення розетки. Пффф.
Андрій тут. Так, бюрократія це жесть! Я теж колись довго мучився з цими дозволами. Здається, простіше космічний корабель збудувати, ніж стіну перенести.