Ви хочете створити красивий дизайн квартири? Але чи враховуєте ви все необхідне на папері? Чи знаєте ви, як важливо все спланувати до дрібниць? У цій статті ми розберемо, як виглядає дизайн проєкт квартири на кресленнях. Це допоможе вам уникнути помилок під час ремонту.
Креслення в дизайн-проєкті – це як детальна інструкція для будівельників. Вони допомагають продумати все: від оздоблення до розташування меблів. Це значно спрощує роботу і зменшує ризик помилок. Давайте розглянемо приклад дизайн-проєкту квартири площею 74 м². Замовники хотіли сучасний простір з великою кількістю світла, розумними системами та зручними меблями. Розберемо, які креслення були створені для цього проєкту. Це допоможе вам краще зрозуміти, як відбувається процес створення дизайн-проєкту.
У цій статті ви дізнаєтесь:
- Що таке обмірний план і навіщо він потрібен.
- Як плани демонтажу та монтажу допомагають при переплануванні.
- Чому план розстановки меблів – один з найважливіших.
- Яку інформацію містять плани підлоги, стелі та освітлення.
- Як план розеток полегшує життя.
- Навіщо потрібні плани розгортки стін.
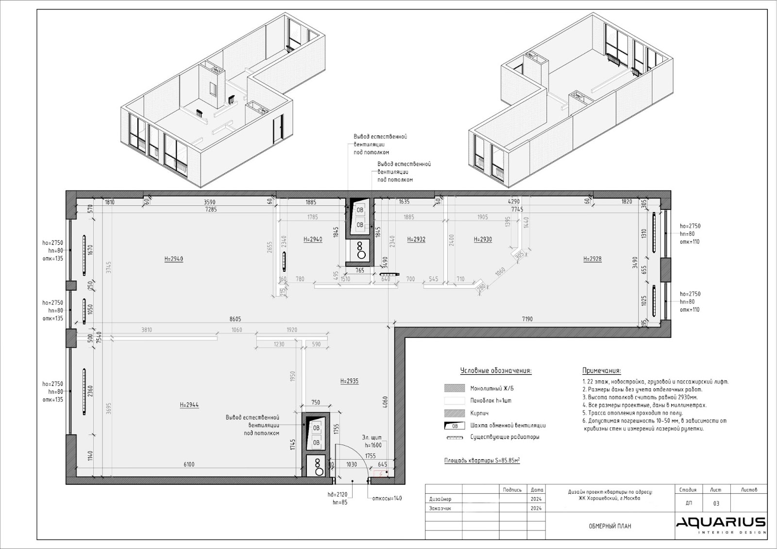
Обмірний план
Дизайнер починає роботу з обмірів приміщення. Він вимірює всі кімнати та визначає розташування комунікацій. На основі цих даних створюється обмірний план. Це відправна точка для всіх подальших креслень.
Обмірний план – це основа дизайн-проєкту. На ньому вказані розміри всіх кімнат, розташування труб, радіаторів, каналізації та лічильників. Це дозволяє точно спланувати всі подальші роботи. Без обмірного плану неможливо створити якісний дизайн-проєкт. Він допомагає уникнути помилок і неточностей.

Дізнайтеся більше про те, як відбувається замір квартири перед ремонтом в іншій нашій статті. Це допоможе вам зрозуміти важливість цього етапу. Правильний замір – запорука успішного ремонту.
Зазвичай, підготовка всіх креслень для дизайн-проєкту займає близько 20 днів. Це час, необхідний для ретельного опрацювання всіх деталей.
План демонтажу та монтажу
Якщо ви плануєте перепланування квартири, вам знадобляться додаткові креслення. Це план демонтажу та план монтажу. План демонтажу показує, що потрібно прибрати. План монтажу показує, що потрібно збудувати.
На плані демонтажу вказують перегородки, радіатори, дверні коробки та інші елементи, які потрібно демонтувати. Це важливо для правильного виконання робіт. Будівельники чітко бачать, що потрібно прибрати, і не роблять помилок.

Важливо знати будівельні норми. Перепланування має бути законним. Інакше можуть бути проблеми з продажем квартири. Також можуть оштрафувати і змусити повернути все назад.
На плані монтажу вказують, де будуть нові перегородки, дверні отвори, радіатори та інші елементи. Дизайнер допоможе вам обрати найкращий варіант перепланування. Він врахує ваші побажання і будівельні норми.

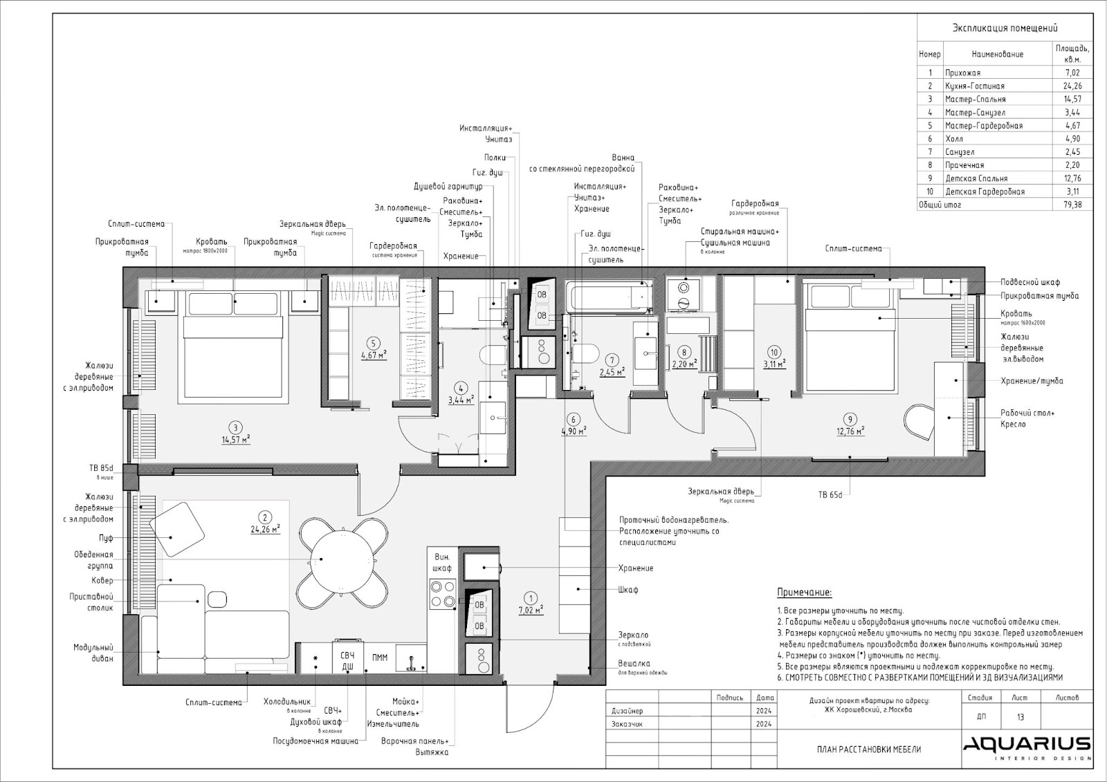
План розстановки меблів
План розстановки меблів – це один з найважливіших креслень. Він допомагає зробити інтер’єр зручним і безпечним. Дизайнер спільно з замовником визначає, де будуть стояти меблі.
Дизайнер пропонує кілька варіантів розстановки меблів. Замовник обирає той, який йому найбільше підходить. Важливо враховувати розміри кімнат і функціональність меблів. Правильна розстановка меблів робить простір зручним для життя.

Ергономічне планування – це ключ до комфортного життя. Важливо, щоб у квартирі було достатньо місця для пересування. Меблі не повинні заважати один одному. Все має бути під рукою.

Рекомендуємо замовляти меблі за індивідуальним проєктом. Тоді вони ідеально впишуться в інтер’єр. Також важливо вибирати якісні матеріали. Вони прослужать довше і будуть безпечними для здоров’я.
За даними досліджень, правильна розстановка меблів може збільшити продуктивність на 15%. Це важливо для тих, хто працює вдома.
План підлогових покриттів
На цьому кресленні вказують, де яке покриття буде лежати. Наприклад, паркетна дошка у кімнатах і плитка у ванній. Дизайнер вказує напрямок укладання та спосіб монтажу. Це допомагає точно розрахувати кількість матеріалу.
Креслення підлогових покриттів дозволяє точно розрахувати матеріал і підібрати зручну розкладку для підлоги. Також може бути окремий план розташування плінтусів і теплої підлоги, якщо вона є.

Вибір підлогового покриття залежить від багатьох факторів. Важливо враховувати стиль інтер’єру, функціональність приміщення і ваші особисті вподобання. Паркетна дошка додає тепла і затишку. Плитка практична і легко миється.
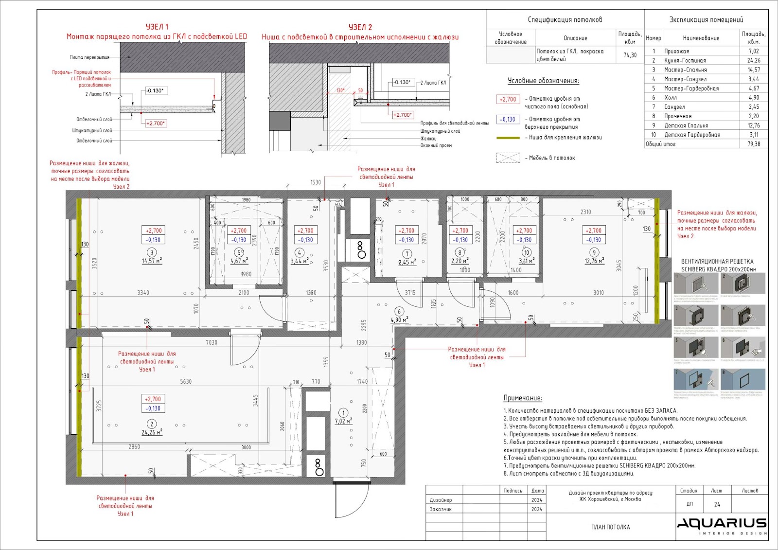
План стелі
У плані стелі вказується, з чого вона буде зроблена. Також вказують площу, кількість рівнів і отворів. Дизайнер вказує наявність підвісної стелі, ніш з підсвіткою.
Якщо на стелі будуть плінтуси, для них малюють окремий креслення. Важливо правильно спланувати освітлення. Воно повинно бути достатнім і комфортним для очей.

Сучасний дизайн 2026 часто використовує багаторівневі стелі з підсвіткою. Це дозволяє створити цікавий візуальний ефект. Також популярні натяжні стелі. Вони практичні і мають багато варіантів дизайну.
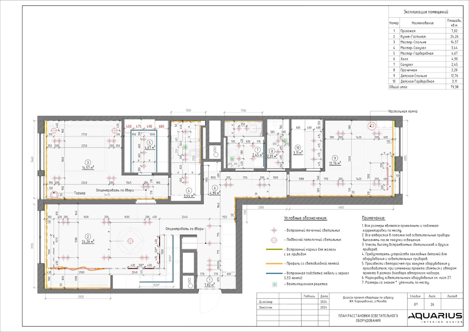
План освітлення
Тут дизайнер вказує, де будуть розташовані всі світильники. Це можуть бути стельові, точкові світильники, трекове освітлення, бра та інші прилади. Важливо правильно розподілити світло по кімнаті.
Дизайнери можуть підібрати не тільки кількість світильників, але і відтінок освітлення. Від цього залежить атмосфера в інтер’єрі. Додатково роблять план світильників по групах і план управління з вимикачами.

Освітлення відіграє важливу роль у створенні затишної атмосфери. Важливо враховувати функціональність приміщення. У вітальні можна використовувати кілька джерел світла. У спальні краще м’яке, розсіяне світло.
Використовуйте LED-лампи. Вони економні і мають довгий термін служби. Також зверніть увагу на колірну температуру світла. Тепле світло створює затишну атмосферу. Холодне світло підходить для робочих приміщень.
План розеток
У цьому плані дизайнер відмічає всі розетки і виводи під електрику. Окремо позначають точки підключення для слабкострумових систем. Важливо, щоб розеток було достатньо і вони були зручно розташовані.
На плані також позначається висота розеток, їх тип і кількість. Це дозволяє уникнути проблем під час ремонту. Будівельники чітко бачать, де потрібно встановлювати розетки.

Планування розеток – важливий етап дизайн-проєкту. Важливо враховувати розташування меблів і техніки. Також потрібно передбачити додаткові розетки для зарядки гаджетів.
План розгортки стін
Для кожної стіни дизайнер окремо малює план розгортки. На ньому детально зображують всі елементи, які будуть на стіні, з їх точними розмірами. Це важливо для правильного монтажу.
3D-модель більш наочно показує деталі. З її допомогою фахівці точно дізнаються, де робити отвори або як кріпити меблі. Це допомагає уникнути помилок і переробок.

За статистикою, наявність плану розгортки стін зменшує кількість помилок при ремонті на 20%. Це значна економія часу і грошей.

Що ви отримуєте, коли замовляєте креслення у нас?
Креслення дозволяють повноцінно розкрити потенціал простору. Ви зможете розрахувати кількість матеріалу і не витрачати зайві гроші. Будівельникам простіше працювати, тому що у них є точні розміри і розташування всіх елементів. Це допомагає уникнути помилок і переробок.
Дизайн проєкт квартири – це інвестиція в ваш комфорт і затишок. Він допомагає створити простір, який відповідає вашим потребам і вподобанням. Не економте на плануванні. Це окупиться в майбутньому.
Пам’ятайте, що перепланування квартири потребує узгодження. Не робіть нічого без дозволу. Це може призвести до штрафів і проблем з законом.
Часті запитання
Фотогалерея





Креслення – це, звісно, круто, але де взяти час на всі ці деталі? 🤔 Хіба що замовити все під ключ, щоб потім не переробляти сто разів! А то на папері все виглядає ідеально, а в реальності – криві стіни і розетки не там, де треба 🤦♂️
Креслення – це база. Пам’ятаю, робив ремонт без проєкту, думав, зекономлю. В результаті – купа переробок, купа грошей на вітер. Краще одразу все прорахувати.